Баня из бруса фахверковая 9 на 5 "Берлин"

Лаконичный дизайн и панорама —
баня для отдыха и релакса.

Размеры

9х5

Площадь помещений

24 м²

Пятно застройки

45 м²

Этажность

1

Технология

Брус

Стиль

Фахверк

Стоимость

от 2 311 000 ₽
от 2 311 000 ₽

Размеры

9х5

Площадь помещений

24 м²

Пятно застройки

45 м²

Этажность

1

Технология

Брус

Стиль

Фахверк
Бесплатно
Бесплатно адаптируем планировку для вас

По вашему запросу мы бесплатно доработаем планировку, чтобы вы получили максимальное удовольствие от загородного отдыха

Предложим планировку, в которой каждый квадратный метр будет использован с максимальной эффективностью

Планировка

Увеличим или уменьшим площадь здания. Изменим расположение окон и дверей. Добавим санузел, ещё одну спальню для гостей, террасу и так далее

Изменить проект

Баня из бруса фахверковая 9 на 5 "Берлин": Баня из бруса фахверковая – 9х5

Проект "Берлин" — это баня из бруса размером 9 на 5 м, выполненная в стиле современного фахверка.

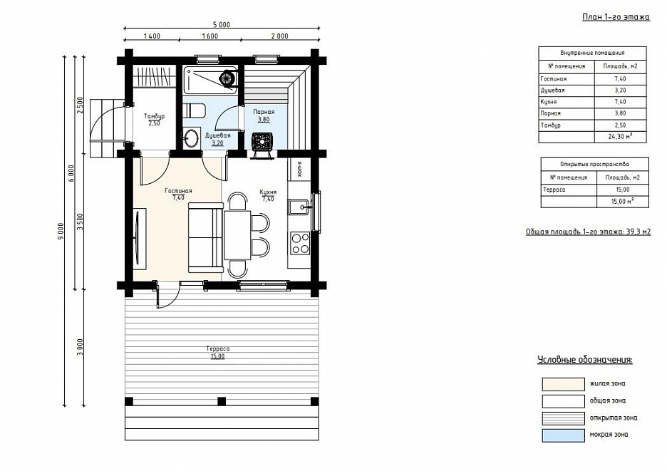
Баня выполнена из клеёного бруса — прочного, долговечного и экологически чистого материала, идеально подходящего для банного строительства. Стиль — современный фахверк с панорамным остеклением, который придаёт зданию лёгкость и обеспечивает максимальное естественное освещение. Планировка продумана до мелочей: просторная терраса площадью 15 м² отлично подходит для отдыха на свежем воздухе. Внутри размещены гостиная (7,4 м²) и кухня аналогичной площади, объединённые в одно общее пространство, где можно комфортно провести время после банных процедур. Мокрая зона включает душевую (3,2 м²), парную (3,8 м²) и санузел. Также предусмотрен тамбур (2,5 м²), который помогает сохранить тепло внутри. Проект идеально подойдёт для дачного или загородного участка и рассчитан на семью или компанию до 4 человек. «Берлин» станет отличным выбором для тех, кто ценит современный стиль, компактность и удобство в каждом элементе.
Оплата Доставка
Описание
1. Фундамент
  • Геодезические исследования (топосъемка) участка
  • Геологические иследования участка
  • Подбор фундамента
  • Проект фундамента
  • Привязка строения на местности
  • Забивные ж/б сваи
  • Монолитный ж/б ростверк
  • Приемка инженером технического надзора
2. Стеновой комплект
  • Рабочий проект КД
  • Подкладочная доска из лиственницы
  • Брус клееный стеновой производства, сечение 175х185(h), немецкий профиль
  • Балки и столбы сухие, клееные, строганные
  • Комплектующие, фурнитура
  • Лестница межэтажная черновая однопролетная
  • Доставка стенового комплекта
  • Сборка стенового комплекта
  • Приемка инженером технического надзора
3. Кровля
  • Рабочий проект КД кровли
  • Покрытие кровли - металлочерепица с полимерным покрытием
  • Стропила сухие
  • Утепление 250 мм
  • Гидро-ветрозащитная мембарана
  • Пароизоляционная пленка
  • Комплектующие, фурнитура
  • Водосточная система
  • Трубчатая система снегозадержания
  • Техническая вентиляция
  • Подшивная доска для свесов кровли
  • Доставка
  • Сборка
  • Приемка инженером технического надзора
4. Окна и двери
  • ПВХ-профиль 70 мм и фурнитура
  • Стеклопакеты энергосберегающие многофункциональные
  • Входная дверь
  • Комплектующие
  • Внешние наличники
  • Монтаж
  • Приемка инженером технического надзора
5. Сопровождение строительства
  • Организация проживания рабочих (бытовка)
  • Подключение бытовки к электричеству
  • Организация биотуалета
  • Вывоз мусора

Остались вопросы?

Свяжитесь с нами или оставьте заявку — мы проконсультируем вас по всем вопросам.

Артем Ефремов

Артем Ефремов

Эксперт по строительству

Выберите удобный для вас способ связи:

Смотрите также похожие
  • По стоимости
    Проекты бань до 5 млн. ₽
    Иконка
  • По площади
    Проекты бань до 60 м2
    Иконка
  • По размеру
    Проекты бань 6x6
    Иконка
  • По материалу
    Каркасные бани под ключ
    Иконка
Баня из бруса фахверковая 9 на 5 "Берлин"

Лаконичный дизайн и панорама —
баня для отдыха и релакса.

Стоимость

от 2 311 000 ₽

Размеры

9х5

Площадь помещений

24 м²

Мы используем файлы cookie
для обеспечения наилучшего
взаимодействия с сайтом

наверх
Акция! До 15 января
Получите дизайн-проект бани под ваши размеры бесплатно
Отрисуем планировку бани
Рассчитаем стоимость
Поможем выбрать стиль
Введите телефон, чтобы получить доступ к документу:
Заполните это поле
Получить дизайн-проект
Я согласен с условиями политики конфиденциальности