




Рестон
Баня в стиле минимализм с большими
окнами в пол и террасой
Размеры
13х11Площадь помещений
48 м²Пятно застройки
143 м²Этажность
1Технология
КаменьСтиль
МинимализмСтоимость
от 6 400 000 руб.Размеры
13х11Площадь помещений
48 м²Пятно застройки
143 м²Этажность
1Технология
КаменьСтиль
МинимализмПо вашему запросу мы бесплатно доработаем планировку, чтобы вы получили максимальное удовольствие от загородного отдыха
Предложим планировку, в которой каждый квадратный метр будет использован с максимальной эффективностью
Увеличим или уменьшим площадь здания. Изменим расположение окон и дверей. Добавим санузел, ещё одну спальню для гостей, террасу и так далее
Изменить проектРестон: Каменная баня – 13х11
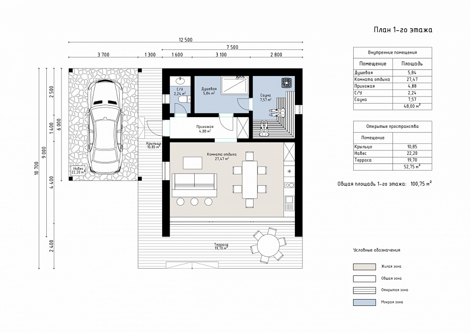
Баня 13×11 м «Рестон» общей площадью 101 м² выполнена в стиле минимализм, сочетающем функциональность и лаконичный дизайн.
Построенный из камня, комплекс отличается строгой геометрией фасадов, сдержанным сочетанием тёмных и деревянных текстур, а также крытой террасой для уединённого отдыха. Общая площадь строения — 100 м², включая 52 м² открытых пространств.
Планировка включает просторную комнату отдыха площадью 27 м², душевую, санузел и сауну на 8 м². Интерьер наполнен светом за счёт высоких окон, а функциональность дополняется вместительным навесом, террасой и крытым крыльцом. Терраса отлично подойдёт для летнего обеда, шезлонгов и лаунж-зоны.
Проект «Рестон» станет отличным решением для тех, кто ценит приватность, эстетику архитектуры и отдых в кругу семьи или близких друзей на фоне природы. Подходит для установки как на дачном участке, так и в формате SPA-зоны рядом с основным домом.
| Описание | |
|---|---|
| 1. Фундамент |
|
| 2. Стеновой комплект |
|
| 3. Кровля |
|
| 4. Окна и двери |
|
| 5. Сопровождение строительства |
|
-
Заказать бесплатные изменения в проекте
или планировке
-
Получить фото и планировку этого проекта в WhatsApp или Telegram
Отправим
в течение
5 минут -
Получить расчет
стоимости в 3 вариантах комплектации
Остались вопросы?
Свяжитесь с нами или оставьте заявку — мы проконсультируем вас по всем вопросам.
Артем Ефремов
Эксперт по строительству
Похожие проекты
Другие- 13х11
- Размеры
- 48 м²
- Площадь помещений
Заполните форму и получите бесплатно: