
Баня Белтра
Простор и приватность —
баня с бассейном, спальнями и атмосферой СПА.
Размеры
12х8Площадь помещений
150 м²Пятно застройки
180 м²Этажность
2Технология
КаменьСтиль
БарнхаусСтоимость
от 12 000 000 руб.Размеры
12х8Площадь помещений
150 м²Пятно застройки
180 м²Этажность
2Технология
КаменьСтиль
БарнхаусПо вашему запросу мы бесплатно доработаем планировку, чтобы вы получили максимальное удовольствие от загородного отдыха
Предложим планировку, в которой каждый квадратный метр будет использован с максимальной эффективностью
Увеличим или уменьшим площадь здания. Изменим расположение окон и дверей. Добавим санузел, ещё одну спальню для гостей, террасу и так далее
Изменить проектБаня Белтра: Скандинавская баня – 12х8
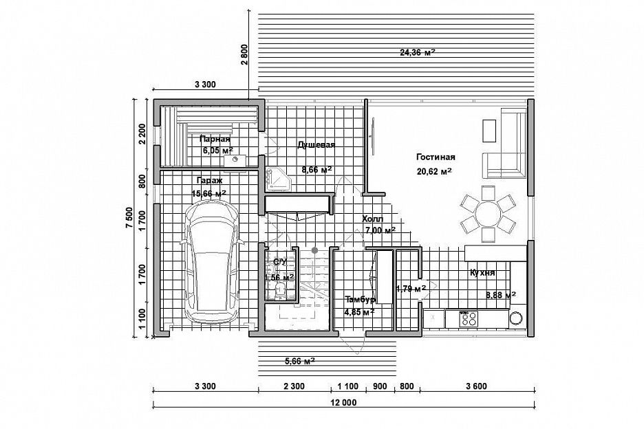
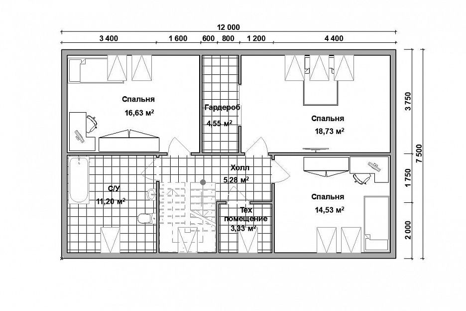
Баня «Белтра» — это просторный и функциональный проект с современным дизайном и панорамным остеклением.
Общая площадь дома составляет около 163 м². Внешне здание выполнено в минималистичном скандинавском стиле с вертикальной деревянной облицовкой и двускатной крышей, покрытой металлочерепицей. Контрастные фасады из дерева и штукатурки придают зданию актуальный и стильный вид.
На первом этаже размещены кухня и гостиная площадью 21 м², парная (6 м²), душевая и санузел, а также гараж и техническое помещение. Второй этаж отведён под зону отдыха: здесь расположены три спальни (от 14 до 18 м²), гардероб, ещё один санузел и холл. Благодаря эргономичной планировке в доме удобно разместиться как на выходные, так и для длительного проживания. Большая терраса площадью 24 м² подойдёт для летнего отдыха.
Проект Белтра особенно подойдёт для тех, кто ценит сочетание эстетики и функциональности. Он отлично впишется в загородный ландшафт и подойдёт как для личного использования, так и для сдачи в аренду.
| Описание | |
|---|---|
| 1. Фундамент |
|
| 2. Стеновой комплект |
|
| 3. Кровля |
|
| 4. Окна и двери |
|
| 5. Сопровождение строительства |
|
-
Заказать бесплатные изменения в проекте
или планировке
-
Получить фото и планировку этого проекта в WhatsApp или Telegram
Отправим
в течение
5 минут -
Получить расчет
стоимости в 3 вариантах комплектации
Остались вопросы?
Свяжитесь с нами или оставьте заявку — мы проконсультируем вас по всем вопросам.
Артем Ефремов
Эксперт по строительству
Похожие проекты
Другие- 12х8
- Размеры
- 150 м²
- Площадь помещений
Заполните форму и получите бесплатно: