
Баня Эльмир
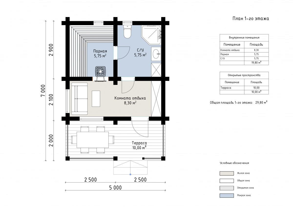
Компактная планировка включает гостиную,
парную, душевую и удобный санузел.
Размеры
5х7Площадь помещений
20 м²Пятно застройки
35 м²Этажность
1Технология
БревноСтиль
ДеревенскийСтоимость
от 1 206 000 руб.Размеры
5х7Площадь помещений
20 м²Пятно застройки
35 м²Этажность
1Технология
БревноСтиль
ДеревенскийПо вашему запросу мы бесплатно доработаем планировку, чтобы вы получили максимальное удовольствие от загородного отдыха
Предложим планировку, в которой каждый квадратный метр будет использован с максимальной эффективностью
Увеличим или уменьшим площадь здания. Изменим расположение окон и дверей. Добавим санузел, ещё одну спальню для гостей, террасу и так далее
Изменить проектЭльмир: Баня из бревна – 5х7
Компактная, но уютная финская баня «Эльмир» — это идеальное решение для небольшого участка.
Фасад из оцилиндрованного бревна подчеркивает деревенский стиль постройки, а терраса с балюстрадой создаёт ощущение уюта и защищённости. Невысокая крыша с широкими свесами и классическая геометрия делают эту баню визуально лёгкой и гармонично вписывающейся в любой ландшафт.
Планировка бани тщательно продумана для максимального комфорта. Общая площадь строения составляет 30 м², включая открытую террасу (10 м²). Внутри расположена комната отдыха площадью 8 м² — здесь можно разместить диван и небольшой стол для чаепития. Парная (почти 6 м²) и совмещённый санузел с душем (ещё 6 м²) обеспечивают полноценный функционал для банных процедур.
Проект подойдёт для дачного участка или загородной резиденции, где важны компактность, эстетика и функциональность. Эльмир подойдёт как для индивидуального пользования, так и для приёма гостей. Баню легко дополнить купелью, уличным душем или летней кухней. Постройка не требует сложного фундамента, что делает её отличным решением даже при ограниченном бюджете.
| Описание | |
|---|---|
| 1. Фундамент |
|
| 2. Стеновой комплект |
|
| 3. Кровля |
|
| 4. Окна и двери |
|
| 5. Сопровождение строительства |
|
-
Заказать бесплатные изменения в проекте
или планировке
-
Получить фото и планировку этого проекта в WhatsApp или Telegram
Отправим
в течение
5 минут -
Получить расчет
стоимости в 3 вариантах комплектации
Остались вопросы?
Свяжитесь с нами или оставьте заявку — мы проконсультируем вас по всем вопросам.
Артем Ефремов
Эксперт по строительству
Похожие проекты
Другие- 5х7
- Размеры
- 20 м²
- Площадь помещений
Заполните форму и получите бесплатно: