Глостер

Уютная баня с отдельной спальней,
идеальна для ночлега и длительного отдыха за городом.

Размеры

12х12

Площадь помещений

91 м²

Пятно застройки

144 м²

Этажность

2

Технология

Бревно

Стиль

Деревенский

Стоимость

от 4 960 000 ₽
от 4 960 000 ₽

Размеры

12х12

Площадь помещений

91 м²

Пятно застройки

144 м²

Этажность

2

Технология

Бревно

Стиль

Деревенский
Бесплатно
Бесплатно адаптируем планировку для вас

По вашему запросу мы бесплатно доработаем планировку, чтобы вы получили максимальное удовольствие от загородного отдыха

Предложим планировку, в которой каждый квадратный метр будет использован с максимальной эффективностью

Планировка

Увеличим или уменьшим площадь здания. Изменим расположение окон и дверей. Добавим санузел, ещё одну спальню для гостей, террасу и так далее

Изменить проект

Глостер: Баня из бревна – 12х12

Баня "Глостер" — это просторное двухэтажное строение из бревна, идеально подходящее для отдыха в кругу семьи и друзей.

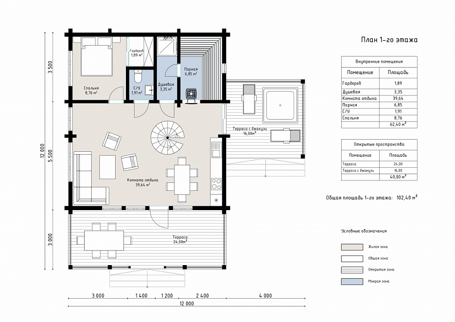
Выполненная из оцилиндрованного бревна, баня отражает традиционный русский стиль, при этом сочетая его с современным уровнем комфорта и функциональности. Общая площадь проекта составляет 102 м², включая два этажа жилого пространства и большую открытую террасу — идеальное место для летнего отдыха и встреч с друзьями. На первом этаже располагается просторная комната отдыха (39 м²), объединенная с кухонной зоной, где можно комфортно проводить время после банных процедур. Также на этаже предусмотрена парная (6,85 м²), душевая, санузел, гардеробная и спальня, что делает баню полностью автономной и подходящей для длительного пребывания. Особое внимание заслуживает терраса с джакузи — настоящий оазис расслабления на свежем воздухе. Второй этаж включает уютную спальню площадью почти 19 м² и холл, из которого открывается вид на гостиную. Это пространство идеально подходит для уединения, сна или даже работы в тишине. Такое зонирование делает проект подходящим как для семейного отдыха, так и для размещения гостей. Проект Глостер — отличный выбор для тех, кто ценит натуральные материалы, эстетику дерева и стремится создать на участке атмосферу настоящего загородного уюта. Подойдет как для сезонного использования, так и для круглогодичной эксплуатации.
Оплата Доставка
Описание
1. Фундамент
  • Геодезические исследования (топосъемка) участка
  • Геологические иследования участка
  • Подбор фундамента
  • Проект фундамента
  • Привязка строения на местности
  • Забивные ж/б сваи
  • Монолитный ж/б ростверк
  • Приемка инженером технического надзора
2. Стеновой комплект
  • Стеновой комплект
  • Рабочий проект КД
  • Подкладочная достка из лиственницы
  • Брус клееный стеновой производства, сечение 175х185(h), немецкий профиль
  • Балки и столбы сухие, клееные, строганные
  • Комплектующие, фурнитура
  • Лестница межэтажная черновая однопролетная
  • Доставка стеневого комплекта
  • Сборка стеневого комплекта
  • Приемка инженером технического надзора
3. Кровля
  • Рабочий проект КД кровли
  • Покрытие кровли - металлочерепица с полимерным покрытием
  • Стропила сухие
  • Утепление 250 мм
  • Гидро-ветрозащитная мембарана
  • Пароизоляционная пленка
  • Комплектующие, фурнитура
  • Водосточная система
  • Трубчатая система снегозадержания
  • Техническая вентиляция
  • Подшивная доска для свесов кровли
  • Доставка
  • Сборка
  • Приемка инженером технического надзора
4. Окна и двери
  • ПВХ-профиль 70 мм и фурнитура
  • Стеклопакеты энергосберегающие многофункциональные
  • Входная металлическая дверь
  • Комплектующие
  • Внешние наличники
  • Монтаж
  • Приемка инженером технического надзора
5. Сопровождение строительства
  • Организация проживания рабочих (бытовка)
  • Подключение бытовки к электричеству
  • Организация биотуалета
  • Вывоз мусора

Остались вопросы?

Свяжитесь с нами или оставьте заявку — мы проконсультируем вас по всем вопросам.

Артем Ефремов

Артем Ефремов

Эксперт по строительству

Выберите удобный для вас способ связи:

Похожие проекты

Другие
Смотрите также похожие
  • По стоимости
    Проекты бань до 5 млн. ₽
    Иконка
  • По площади
    Проекты бань до 60 м2
    Иконка
  • По размеру
    Проекты бань 6x6
    Иконка
  • По материалу
    Каркасные бани под ключ
    Иконка
Глостер

Уютная баня с отдельной спальней,
идеальна для ночлега и длительного отдыха за городом.

Стоимость

от 4 960 000 ₽

Размеры

12х12

Площадь помещений

91 м²

Мы используем файлы cookie
для обеспечения наилучшего
взаимодействия с сайтом

наверх
Акция! До 16 февраля
Получите дизайн-проект бани под ваши размеры бесплатно
Отрисуем планировку бани
Рассчитаем стоимость
Поможем выбрать стиль
Введите телефон, чтобы получить доступ к документу:
Заполните это поле
Получить дизайн-проект
Я согласен с условиями политики конфиденциальности