
Баня Ловен
Компактная баня из бревна с просторной террасой,
создаёт уютное место для отдыха на природе.
Размеры
6х6Площадь помещений
19 м²Пятно застройки
36 м²Этажность
1Технология
БревноСтиль
ДеревенскийСтоимость
от 1 240 000 руб.Размеры
6х6Площадь помещений
19 м²Пятно застройки
36 м²Этажность
1Технология
БревноСтиль
ДеревенскийПо вашему запросу мы бесплатно доработаем планировку, чтобы вы получили максимальное удовольствие от загородного отдыха
Предложим планировку, в которой каждый квадратный метр будет использован с максимальной эффективностью
Увеличим или уменьшим площадь здания. Изменим расположение окон и дверей. Добавим санузел, ещё одну спальню для гостей, террасу и так далее
Изменить проектЛовен: Баня из бревна – 6х6
Баня "Ловен" – уютное и компактное строение из бревна, идеально подходящее для небольшого участка.
Сруб выполнен из оцилиндрованного бревна, что придаёт постройке аутентичность, тепло и выразительную фактуру. Архитектура лаконична и уютна: симметричный фасад, аккуратное крыльцо и навес над террасой формируют атмосферу уединения и спокойствия, идеально вписываясь в лесной или загородный ландшафт.
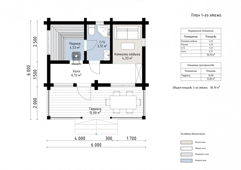
Размеры бани составляют 6×6 метров. Общая площадь — около 31 м². Планировка продумана до мелочей: здесь есть всё необходимое для комфортного отдыха. Просторный холл (6,7 м²) ведёт в уютную комнату отдыха площадью 4,3 м² и компактную, но функциональную парную (4,5 м²). Также предусмотрен санузел с душем (3,1 м²) и открытая терраса площадью 12 м², которая станет идеальным местом для отдыха на свежем воздухе.
Проект подойдёт тем, кто ищет небольшую, но атмосферную баню в традиционном стиле. Он идеален для размещения на участке с уже существующим домом или как самостоятельная постройка в дачном или лесном массиве. Простота форм, природные материалы и грамотная планировка делают «Ловен» отличным выбором для ценителей уюта и настоящей русской бани.
| Описание | |
|---|---|
| 1. Фундамент |
|
| 2. Стеновой комплект |
|
| 3. Кровля |
|
| 4. Окна и двери |
|
| 5. Сопровождение строительства |
|
-
Заказать бесплатные изменения в проекте
или планировке
-
Получить фото и планировку этого проекта в WhatsApp или Telegram
Отправим
в течение
5 минут -
Получить расчет
стоимости в 3 вариантах комплектации
Остались вопросы?
Свяжитесь с нами или оставьте заявку — мы проконсультируем вас по всем вопросам.
Артем Ефремов
Эксперт по строительству
Похожие проекты
Другие- 6х6
- Размеры
- 19 м²
- Площадь помещений
Заполните форму и получите бесплатно: