

Астория
Лаконичный и практичный дизайн,
вдохновлённый традиционной архитектурой.
Размеры
9х12Площадь помещений
58 м²Пятно застройки
108 м²Этажность
1Технология
БрусСтиль
СкандинавияСтоимость
По запросуРазмеры
9х12Площадь помещений
58 м²Пятно застройки
108 м²Этажность
1Технология
БрусСтиль
СкандинавияПо вашему запросу мы бесплатно доработаем планировку, чтобы вы получили максимальное удовольствие от загородного отдыха
Предложим планировку, в которой каждый квадратный метр будет использован с максимальной эффективностью
Увеличим или уменьшим площадь здания. Изменим расположение окон и дверей. Добавим санузел, ещё одну спальню для гостей, террасу и так далее
Изменить проектАстория: Баня из бруса – 9х12
Современная баня «Астория» – сочетание стильного дизайна и комфорта.
Минималистичный фасад с контрастной отделкой и широким навесом над террасой придает строению элегантный и актуальный облик, идеально подходящий для загородных участков в премиум-сегменте.
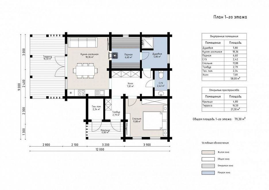
Внутреннее пространство площадью 58 м² включает просторную кухню-гостиную (18 м²), комфортную спальню (12 м²), душевую, санузел, тамбур, техническое помещение и холл. Центром банного ритуала становится парная площадью 6,6 м² — оптимально спланированная для регулярного использования. Для отдыха и приёма гостей предусмотрена большая открытая терраса площадью более 16 м² и отдельное крытое крыльцо.
Проект подойдёт для тех, кто ищет не просто баню, а полноценное пространство для отдыха, оздоровления и приёма гостей. «Астория» отлично впишется в концепцию семейной усадьбы, банного СПА-комплекса или дачного дома с баней, совмещая эстетику и продуманность инженерных решений.
| Описание | |
|---|---|
| 1. Фундамент |
|
| 2. Стеновой комплект |
|
| 3. Кровля |
|
| 4. Окна и двери |
|
| 5. Сопровождение строительства |
|
-
Заказать бесплатные изменения в проекте
или планировке
-
Получить фото и планировку этого проекта в WhatsApp или Telegram
Отправим
в течение
5 минут -
Получить расчет
стоимости в 3 вариантах комплектации
Остались вопросы?
Свяжитесь с нами или оставьте заявку — мы проконсультируем вас по всем вопросам.
Артем Ефремов
Эксперт по строительству
Похожие проекты
Другие- 9х12
- Размеры
- 58 м²
- Площадь помещений
Заполните форму и получите бесплатно: