





Баня Генк
Баня с акцентом на стиль и комфорт,
созданная для загородного релакса.
Размеры
6х8Площадь помещений
30 м²Пятно застройки
48 м²Этажность
1Технология
Клееный брусСтиль
фахверкСтоимость
от 4 416 000 руб.Размеры
6х8Площадь помещений
30 м²Пятно застройки
48 м²Этажность
1Технология
Клееный брусСтиль
фахверкПо вашему запросу мы бесплатно доработаем планировку, чтобы вы получили максимальное удовольствие от загородного отдыха
Предложим планировку, в которой каждый квадратный метр будет использован с максимальной эффективностью
Увеличим или уменьшим площадь здания. Изменим расположение окон и дверей. Добавим санузел, ещё одну спальню для гостей, террасу и так далее
Изменить проектГенк: Баня из клееного бруса – 6х8
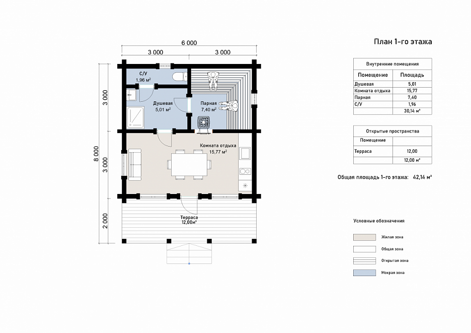
Баня из клееного бруса размером 6х8 м «Генк» общей площадью 42 м² представляет собой функциональный проект в современном стиле.
Компактная и выразительная, она идеально впишется как в частный загородный участок, так и в коммерческий банный комплекс. В основе лежит качественный клееный брус, который обеспечивает высокую теплоизоляцию и стабильную геометрию стен на долгие годы.
Планировка включает три основные функциональные зоны: открытую террасу площадью 12 м², уютную комнату отдыха (почти 16 м²), а также полноценный банный блок с душевой (5 м²), парной (7,4 м²) и санузлом. Такая структура позволяет комфортно разместить до 6 гостей одновременно.
Общая площадь постройки составляет 42 м², что делает её удобной как для регулярного семейного отдыха, так и для аренды. Проект подойдёт тем, кто ценит простоту форм, функциональность и стремится к созданию атмосферного пространства с минимальными затратами на содержание.
| Описание | |
|---|---|
| 1. Фундамент |
|
| 2. Стеновой комплект |
|
| 3. Кровля |
|
| 4. Окна и двери |
|
| 5. Сопровождение строительства |
|
-
Заказать бесплатные изменения в проекте
или планировке
-
Получить фото и планировку этого проекта в WhatsApp или Telegram
Отправим
в течение
5 минут -
Получить расчет
стоимости в 3 вариантах комплектации
Остались вопросы?
Свяжитесь с нами или оставьте заявку — мы проконсультируем вас по всем вопросам.
Артем Ефремов
Эксперт по строительству
Похожие проекты
Другие- 6х8
- Размеры
- 30 м²
- Площадь помещений
Заполните форму и получите бесплатно: