
Баня Вольфсбург 4
Баня в современном стиле с панорамными окнами,
где внутренняя и открытая зоны плавно переходят друг в друга.
Размеры
5х10Площадь помещений
33 м²Пятно застройки
50 м²Этажность
1Технология
Клееный брусСтиль
СкандинавияСтоимость
от 4 365 000 руб.Размеры
5х10Площадь помещений
33 м²Пятно застройки
50 м²Этажность
1Технология
Клееный брусСтиль
СкандинавияПо вашему запросу мы бесплатно доработаем планировку, чтобы вы получили максимальное удовольствие от загородного отдыха
Предложим планировку, в которой каждый квадратный метр будет использован с максимальной эффективностью
Увеличим или уменьшим площадь здания. Изменим расположение окон и дверей. Добавим санузел, ещё одну спальню для гостей, террасу и так далее
Изменить проектВольфсбург 4: Баня из клееного бруса – 5х10
Баня «Вольфсбург 4» — уютный проект в современном скандинавском стиле, созданный для комфортного отдыха на природе.
Благодаря продуманной планировке и строгой геометрии форм, постройка идеально впишется в любой участок — от лесного до приусадебного. Основным строительным материалом выступает клееный брус, который обеспечивает надежность, теплоизоляцию и эффектный внешний вид.
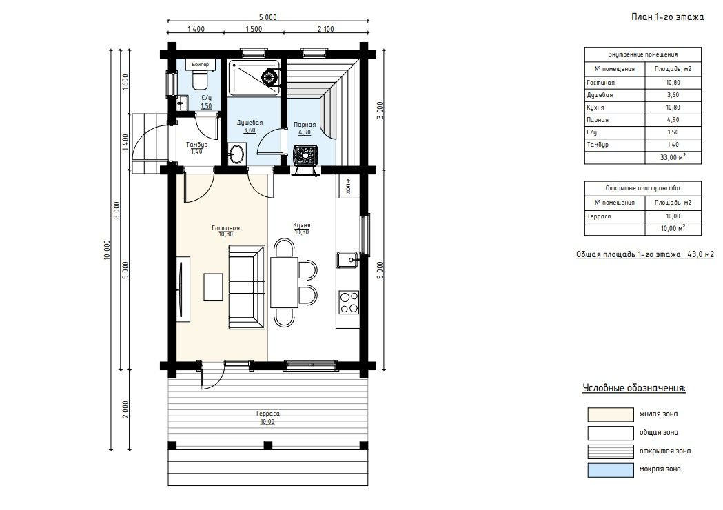
Общая площадь бани составляет 43 м², из которых 33 м² приходится на закрытые помещения. Внутри предусмотрены кухня и гостиная по 10,8 м², где удобно разместятся как ужин с друзьями, так и вечер у камина. Мокрая зона включает душевую (3,6 м²) и парную (4,9 м²), а также отдельный санузел. Небольшой тамбур (1,4 м²) служит буферной зоной от улицы. Просторная терраса площадью 10 м² с навесом подойдет для размещения зоны барбекю или летней мебели.
Проект подойдет тем, кто ищет небольшой, но функциональный банный комплекс для отдыха на природе, встреч с друзьями или семейных вечеров.
| Описание | |
|---|---|
| 1. Фундамент |
|
| 2. Стеновой комплект |
|
| 3. Кровля |
|
| 4. Окна и двери |
|
| 5. Сопровождение строительства |
|
-
Заказать бесплатные изменения в проекте
или планировке
-
Получить фото и планировку этого проекта в WhatsApp или Telegram
Отправим
в течение
5 минут -
Получить расчет
стоимости в 3 вариантах комплектации
Остались вопросы?
Свяжитесь с нами или оставьте заявку — мы проконсультируем вас по всем вопросам.
Артем Ефремов
Эксперт по строительству
Похожие проекты
Другие- 5х10
- Размеры
- 33 м²
- Площадь помещений
Заполните форму и получите бесплатно: