

Баня Холивуд
Архитектура с характером —
резиденция премиум-уровня с сауной.
Размеры
22х10Площадь помещений
196 м²Пятно застройки
234 м²Этажность
1Технология
КаменьСтиль
СкандинавияСтоимость
от 15 680 000 руб.Размеры
22х10Площадь помещений
196 м²Пятно застройки
234 м²Этажность
1Технология
КаменьСтиль
СкандинавияПо вашему запросу мы бесплатно доработаем планировку, чтобы вы получили максимальное удовольствие от загородного отдыха
Предложим планировку, в которой каждый квадратный метр будет использован с максимальной эффективностью
Увеличим или уменьшим площадь здания. Изменим расположение окон и дверей. Добавим санузел, ещё одну спальню для гостей, террасу и так далее
Изменить проектБаня Холивуд: Каменная баня – 22х10
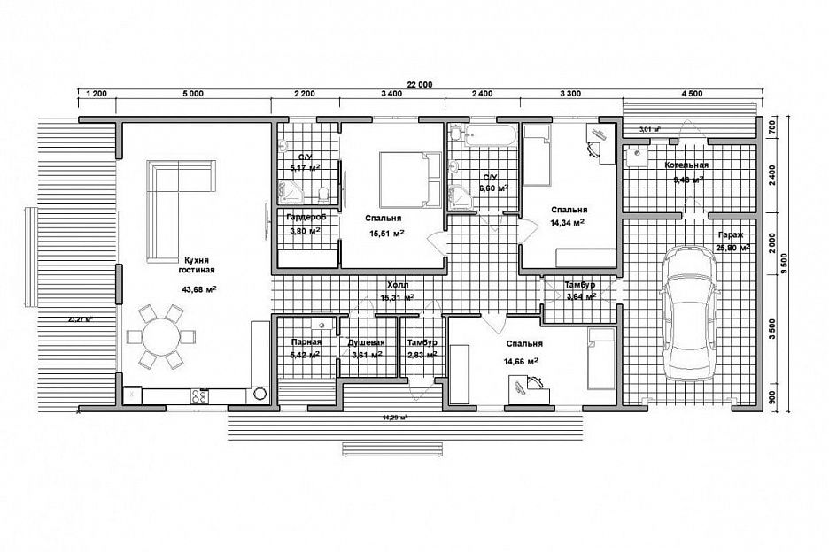
Проект бани «Холивуд» — это современное каменное строение размером 9,5 на 22 метра, выполненное в скандинавском стиле с лаконичными формами и панорамными окнами.
Эстетика фасада основана на контрасте натурального дерева и темной облицовки, а высокая двускатная крыша придает зданию архитектурную выразительность.
Внутреннее пространство включает четыре спальни, просторную кухню-гостиную площадью более 43 м², две душевых, три санузла, гардеробную и парную. Для хранения предусмотрена котельная, а также встроенный гараж площадью 26 м². Основная зона отдыха выходит на широкую террасу, где можно разместить зону барбекю или лаунж.
Баня «Холивуд» идеально подойдёт для большой семьи или компании, ценящей комфорт, приватность и архитектурную элегантность. Это отличный выбор для загородного проживания или премиального глэмпинга.
| Описание | |
|---|---|
| 1. Фундамент |
|
| 2. Стеновой комплект |
|
| 3. Кровля |
|
| 4. Окна и двери |
|
| 5. Сопровождение строительства |
|
-
Заказать бесплатные изменения в проекте
или планировке
-
Получить фото и планировку этого проекта в WhatsApp или Telegram
Отправим
в течение
5 минут -
Получить расчет
стоимости в 3 вариантах комплектации
Остались вопросы?
Свяжитесь с нами или оставьте заявку — мы проконсультируем вас по всем вопросам.
Артем Ефремов
Эксперт по строительству
Похожие проекты
Другие- 22х10
- Размеры
- 196 м²
- Площадь помещений
Заполните форму и получите бесплатно: