

Дортмунд
Современная баня с лаконичным дизайном
и функциональной планировкой для загородного досуга.
Размеры
6х12Площадь помещений
46 м²Пятно застройки
72 м²Этажность
1Технология
КаркаснаяСтиль
БарнхаусСтоимость
от 3 505 000 руб.Размеры
6х12Площадь помещений
46 м²Пятно застройки
72 м²Этажность
1Технология
КаркаснаяСтиль
БарнхаусПо вашему запросу мы бесплатно доработаем планировку, чтобы вы получили максимальное удовольствие от загородного отдыха
Предложим планировку, в которой каждый квадратный метр будет использован с максимальной эффективностью
Увеличим или уменьшим площадь здания. Изменим расположение окон и дверей. Добавим санузел, ещё одну спальню для гостей, террасу и так далее
Изменить проектДортмунд: Баня под ключ – 6х12
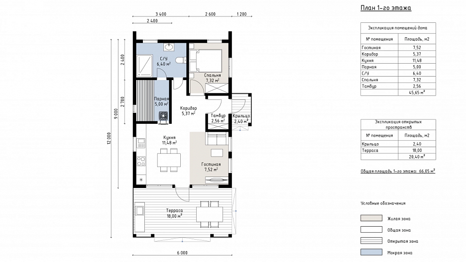
Баня 12×6 м «Дортмунд» общей площадью 66 м² выполнена в стиле Барнхаус, подчеркивающем лаконичность и современную эстетику.
Каркасная технология обеспечивает надежность и энергоэффективность. Просторная терраса и зонирование создают комфорт для отдыха.
Внутренние помещения занимают 46 м²: кухня 11 м², гостиная 8 м², спальня 7 м², парная 5 м², душевая 6 м², коридор и тамбур. Открытые пространства — терраса 18 м² и крыльцо 2 м².
«Дортмунд» подойдет для ценителей минимализма, стиля и уюта. Терраса и большие окна гармонично соединяют баню с природой, делая ее идеальной для отдыха.
| Описание | |
|---|---|
| 1. Фундамент |
|
| 2. Стеновой комплект |
|
| 3. Кровля |
|
| 4. Окна и двери |
|
| 5. Сопровождение строительства |
|
-
Заказать бесплатные изменения в проекте
или планировке
-
Получить фото и планировку этого проекта в WhatsApp или Telegram
Отправим
в течение
5 минут -
Получить расчет
стоимости в 3 вариантах комплектации
Остались вопросы?
Свяжитесь с нами или оставьте заявку — мы проконсультируем вас по всем вопросам.
Артем Ефремов
Эксперт по строительству
Похожие проекты
Другие- 6х12
- Размеры
- 46 м²
- Площадь помещений
Заполните форму и получите бесплатно: