





Лестер
Просторный барнхаус с террасой и стильным дизайном,
подходит для отдыха и постоянного проживания
Размеры
10х5Площадь помещений
52 м²Пятно застройки
50 м²Этажность
2Технология
КаркаснаяСтиль
БарнхаусСтоимость
от 3 529 000 руб.Размеры
10х5Площадь помещений
52 м²Пятно застройки
50 м²Этажность
2Технология
КаркаснаяСтиль
БарнхаусПо вашему запросу мы бесплатно доработаем планировку, чтобы вы получили максимальное удовольствие от загородного отдыха
Предложим планировку, в которой каждый квадратный метр будет использован с максимальной эффективностью
Увеличим или уменьшим площадь здания. Изменим расположение окон и дверей. Добавим санузел, ещё одну спальню для гостей, террасу и так далее
Изменить проектЛестер: Баня Барнхаус – 10х5
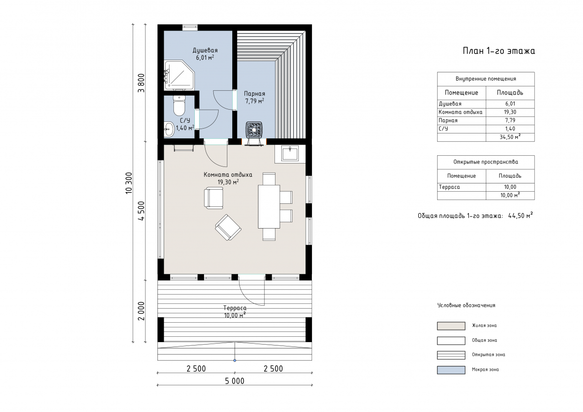
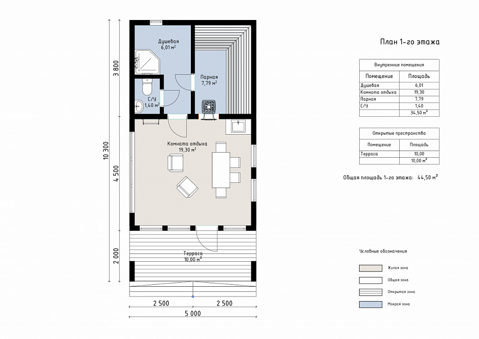
Барнхаус Лестер 5×10 м общей площадью 61 м² выполнен по каркасной технологии, что обеспечивает экологичность, низкую стоимость эксплуатации и комфортный микроклимат.
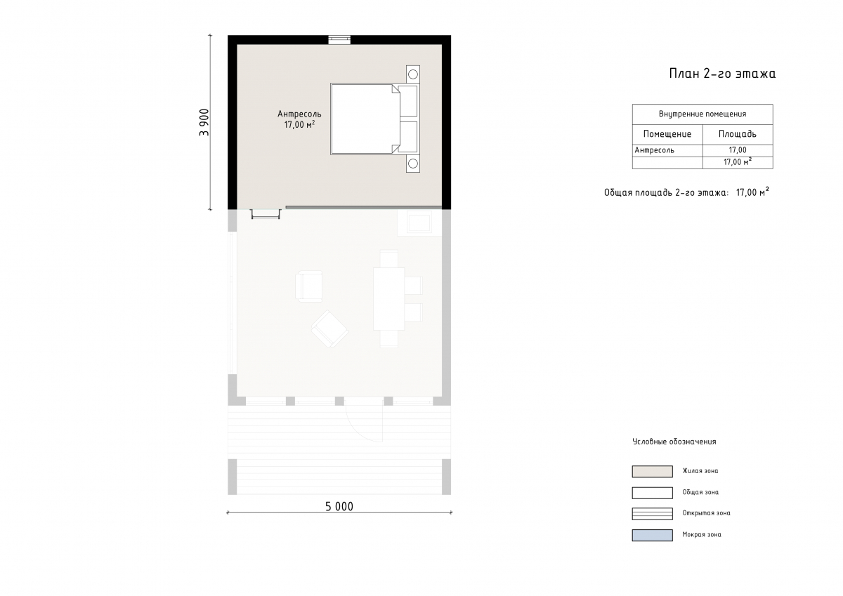
Стиль барнхаус с двухскатной крышей и панорамными окнами создает простор и связь с природой. Удобная планировка дополняется антресольным этажом для дополнительной функциональности.
Внутренние помещения занимают 52 м²: комната отдыха 19 м², парная 8 м², душевая и санузел. Антресоль 17 м² подходит для спальни или зоны отдыха. Терраса 10 м² идеально подходит для летнего досуга.
Барнхаус Лестер сочетает минимализм, стиль и комфорт, подходя для загородного отдыха или постоянного проживания.
- Бани под ключ
- Дачные
- Двухэтажные бани в стиле Барнхаус
- Двухэтажные бани с барбекю
- Двухэтажные бани с зоной барбекю
- Двухэтажные бани с зоной для мангала
- Двухэтажные бани с мангалом
- Двухэтажные бани с мансардой
- Двухэтажные бани с панорамными окнами
- Двухэтажные дом бани с панорамными окнами
- Двухэтажные зимние бани
- Двухэтажный гостевой дом-баня
- Деревянные
- Деревянные двухэтажные бани
- Дизайнерские двухэтажные бани
- Дом бани в стиле Барнхаус
- Дом баня для гостей
- Дом с баней
- Дом с баней для дачи
- Каркасные бани
- Каркасные двухэтажные бани
- Мини бани в стиле Барнхаус
- Одноэтажные бани в стиле Барнхаус
- Проекты бань с панорамным окном в парной
- Типовые проекты бань
| Описание | |
|---|---|
| 1. Фундамент |
|
| 2. Стеновой комплект |
|
| 3. Кровля |
|
| 4. Окна и двери |
|
| 5. Сопровождение строительства |
|
-
Заказать бесплатные изменения в проекте
или планировке
-
Получить фото и планировку этого проекта в WhatsApp или Telegram
Отправим
в течение
5 минут -
Получить расчет
стоимости в 3 вариантах комплектации
Остались вопросы?
Свяжитесь с нами или оставьте заявку — мы проконсультируем вас по всем вопросам.
Артем Ефремов
Эксперт по строительству
Похожие проекты
Другие- 10х5
- Размеры
- 52 м²
- Площадь помещений
Заполните форму и получите бесплатно: