

Рочестер
Компактная, но функциональная баня с удобным зонированием
и просторной террасой для отдыха в любое время года.
Размеры
7х9Площадь помещений
29 м²Пятно застройки
63 м²Этажность
1Технология
БревноСтиль
традиционный/деревенскийСтоимость
от 2 170 000 руб.Размеры
7х9Площадь помещений
29 м²Пятно застройки
63 м²Этажность
1Технология
БревноСтиль
традиционный/деревенскийПо вашему запросу мы бесплатно доработаем планировку, чтобы вы получили максимальное удовольствие от загородного отдыха
Предложим планировку, в которой каждый квадратный метр будет использован с максимальной эффективностью
Увеличим или уменьшим площадь здания. Изменим расположение окон и дверей. Добавим санузел, ещё одну спальню для гостей, террасу и так далее
Изменить проектРочестер: Финская баня из бревна – 7х9
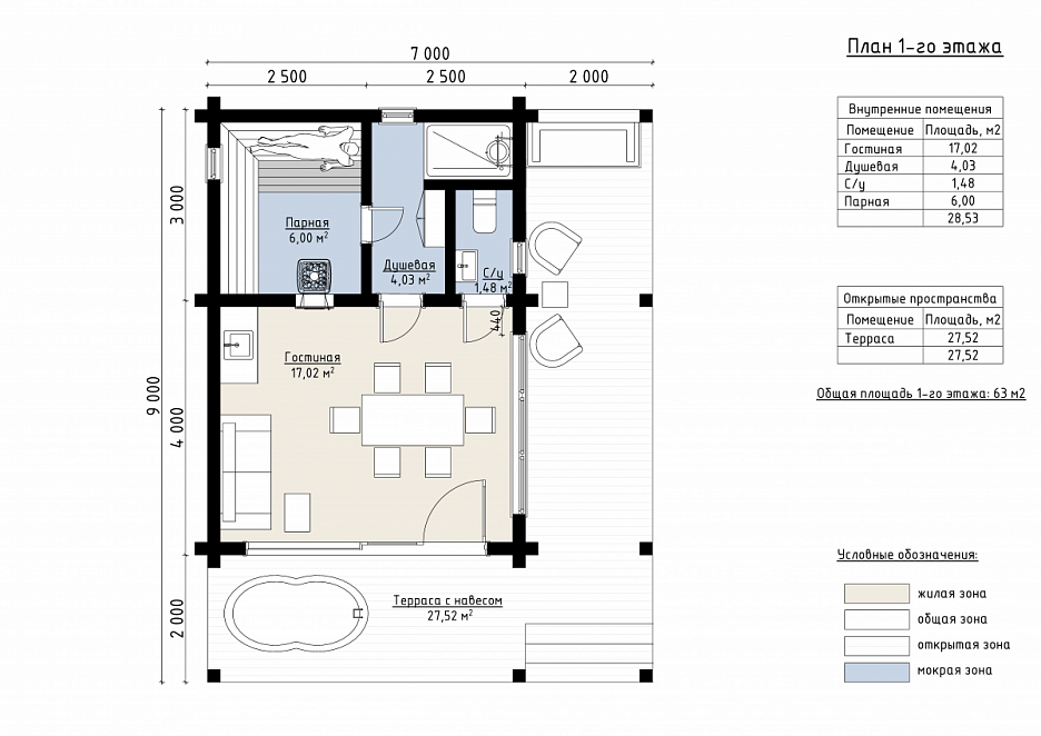
Компактная и уютная баня «Рочестер» создана для тех, кто ценит традиционные русские банные традиции в сочетании с комфортом современного загородного отдыха.
Классическая срубная конструкция с просторной террасой под крышей делает проект универсальным для любого участка. Внутреннее пространство организовано с максимальной функциональностью. Гостиная площадью 17 м² становится центром отдыха и общения. Здесь можно расположить диванную группу и зону для чаепития. Парная (6 м²) рассчитана на комфортное посещение несколькими людьми одновременно, а мощная печь гарантирует насыщенный пар и равномерный прогрев помещения. Рядом расположена душевая (4 м²), обеспечивающая удобство после парения. Санузел (2 м²) завершает комплекс необходимых удобств. Открытая терраса площадью 28 м² с навесом идеально подходит для обустройства зоны отдыха, размещения купели или уличного камина. Пространство продумано так, чтобы обеспечить приватность и защиту от погодных условий.
- Бани из бревна
- Бани из бревна 7х9
- Готовые бани с отделкой
- Готовые бани с панорамными окнами
- Деревянные
- Классические одноэтажные бани
- Красивые бани с панорамными окнами
- Недорогие бани с барбекю
- Недорогие бани с душем
- Недорогие бани с мангалом
- Недорогие бани с печкой
- Оригинальные одноэтажные бани
- Современные бани с панорамными окнами
- Срубы бань
- Типовые проекты бань
- Финские бани на дачу
- Финские бани с панорамными окнами
- Финские бани с печкой
| Описание | |
|---|---|
| 1. Фундамент |
|
| 2. Стеновой комплект |
|
| 3. Кровля |
|
| 4. Окна и двери |
|
| 5. Сопровождение строительства |
|
-
Заказать бесплатные изменения в проекте
или планировке
-
Получить фото и планировку этого проекта в WhatsApp или Telegram
Отправим
в течение
5 минут -
Получить расчет
стоимости в 3 вариантах комплектации
Остались вопросы?
Свяжитесь с нами или оставьте заявку — мы проконсультируем вас по всем вопросам.
Артем Ефремов
Эксперт по строительству
Похожие проекты
Другие- 7х9
- Размеры
- 29 м²
- Площадь помещений
Заполните форму и получите бесплатно: