

Мичиган
Современная баня с уютной кухней-гостиной
и зоной отдыха на террасе.
Размеры
16х6Площадь помещений
58 м²Пятно застройки
96 м²Этажность
1Технология
Клееный брусСтиль
СкандинавияСтоимость
от 7 459 300 руб.Размеры
16х6Площадь помещений
58 м²Пятно застройки
96 м²Этажность
1Технология
Клееный брусСтиль
СкандинавияПо вашему запросу мы бесплатно доработаем планировку, чтобы вы получили максимальное удовольствие от загородного отдыха
Предложим планировку, в которой каждый квадратный метр будет использован с максимальной эффективностью
Увеличим или уменьшим площадь здания. Изменим расположение окон и дверей. Добавим санузел, ещё одну спальню для гостей, террасу и так далее
Изменить проектМичиган: Финская баня из клееного бруса – 16х6
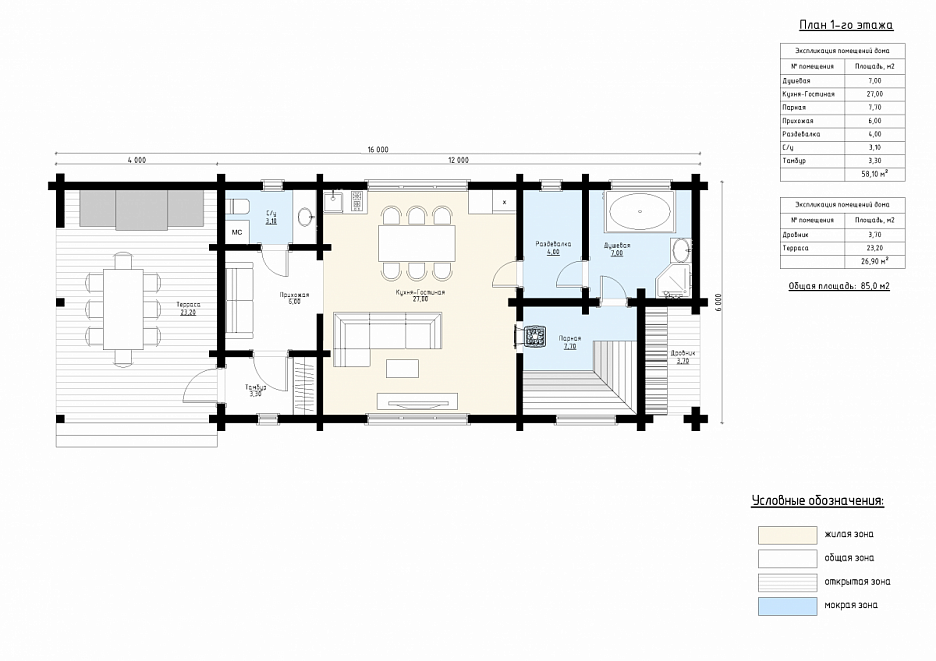
Финская баня из клееного бруса размером 16х6 м «Мичиган» выполнена в скандинавском стиле, объединяя минимализм и уют.
Общая площадь составляет 85 м², что делает проект подходящим для просторного участка. Баня привлекает лаконичными формами, большими окнами и натуральными материалами.
Внутренние помещения занимают 58 м², включая кухню-гостиную площадью 27 м², парную 7 м², душевую 7 м², раздевалку 4 м², прихожую 6 м² и санузел 3 м². Открытая терраса на 23 м² станет прекрасным местом для отдыха.
Проект «Мичиган» сочетает удобство и эстетику, предлагая комфортный отдых в гармонии с природой. Просторная планировка и современный стиль делают эту баню идеальным выбором для семьи или встреч с друзьями.
| Описание | |
|---|---|
| 1. Фундамент |
|
| 2. Стеновой комплект |
|
| 3. Кровля |
|
| 4. Окна и двери |
|
| 5. Сопровождение строительства |
|
-
Заказать бесплатные изменения в проекте
или планировке
-
Получить фото и планировку этого проекта в WhatsApp или Telegram
Отправим
в течение
5 минут -
Получить расчет
стоимости в 3 вариантах комплектации
Остались вопросы?
Свяжитесь с нами или оставьте заявку — мы проконсультируем вас по всем вопросам.
Артем Ефремов
Эксперт по строительству
Похожие проекты
Другие- 16х6
- Размеры
- 58 м²
- Площадь помещений
Заполните форму и получите бесплатно: