

Оттава
Компактный проект бани с функциональной планировкой
и уютной гостиной для семейных вечеров.
Размеры
9х4Площадь помещений
19 м²Пятно застройки
36 м²Этажность
1Технология
Клееный брусСтиль
СкандинавияСтоимость
от 3 140 900 руб.Размеры
9х4Площадь помещений
19 м²Пятно застройки
36 м²Этажность
1Технология
Клееный брусСтиль
СкандинавияПо вашему запросу мы бесплатно доработаем планировку, чтобы вы получили максимальное удовольствие от загородного отдыха
Предложим планировку, в которой каждый квадратный метр будет использован с максимальной эффективностью
Увеличим или уменьшим площадь здания. Изменим расположение окон и дверей. Добавим санузел, ещё одну спальню для гостей, террасу и так далее
Изменить проектОттава: Финская баня из клееного бруса – 9х4
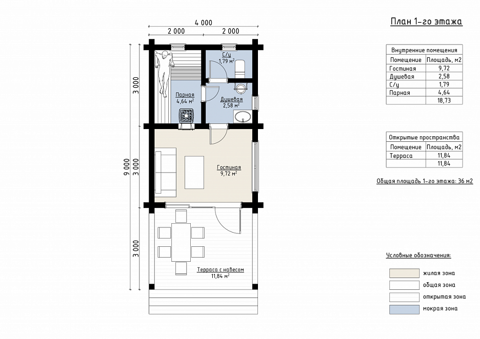
Финская баня из клееного бруса размером 9х4 м «Оттава» общей площадью 36 м² сочетает функциональность и современный стиль.
Уютная терраса площадью 12 м² с навесом станет отличным местом для отдыха на свежем воздухе. Внутреннее пространство занимает 24 м² и включает гостиную площадью 10 м², просторную парную 5 м², душевую 3 м² и санузел 2 м². Эффективное зонирование и удобные размеры делают проект подходящим для семейного отдыха или встреч с друзьями. Проект «Оттава» идеально подходит для ценителей комфорта и простоты, предлагая уютную атмосферу для расслабления и наслаждения природой в любое время года.
| Описание | |
|---|---|
| 1. Фундамент |
|
| 2. Стеновой комплект |
|
| 3. Кровля |
|
| 4. Окна и двери |
|
| 5. Сопровождение строительства |
|
-
Заказать бесплатные изменения в проекте
или планировке
-
Получить фото и планировку этого проекта в WhatsApp или Telegram
Отправим
в течение
5 минут -
Получить расчет
стоимости в 3 вариантах комплектации
Остались вопросы?
Свяжитесь с нами или оставьте заявку — мы проконсультируем вас по всем вопросам.
Артем Ефремов
Эксперт по строительству
Похожие проекты
Другие- 9х4
- Размеры
- 19 м²
- Площадь помещений
Заполните форму и получите бесплатно: