

Кингстон
Уютная баня в альпийском стиле с панорамными окнами
и просторной комнатой отдыха.
Размеры
6х6Площадь помещений
30 м²Пятно застройки
36 м²Этажность
1Технология
БрусСтиль
ШалеСтоимость
от 1 933 000 руб.Размеры
6х6Площадь помещений
30 м²Пятно застройки
36 м²Этажность
1Технология
БрусСтиль
ШалеПо вашему запросу мы бесплатно доработаем планировку, чтобы вы получили максимальное удовольствие от загородного отдыха
Предложим планировку, в которой каждый квадратный метр будет использован с максимальной эффективностью
Увеличим или уменьшим площадь здания. Изменим расположение окон и дверей. Добавим санузел, ещё одну спальню для гостей, террасу и так далее
Изменить проектКингстон: Финская баня из бруса – 6х6
Баня из клееного бруса 6×6 м “Кингстон” — стильное и уютное пространство для комфортного отдыха.
Классическая конструкция с широкой кровлей в альпийском стиле гармонично вписывается в природный ландшафт. Панорамные окна наполняют интерьер светом, а натуральное дерево придаёт помещению тепло и уют.
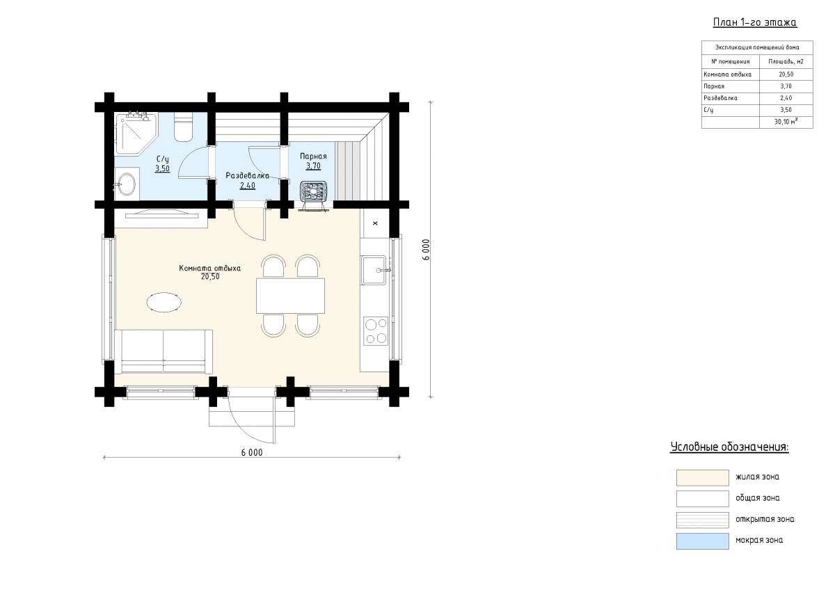
Планировка включает просторную комнату отдыха (21 м²) с обеденной зоной и мини-кухней, отдельную парную (4 м²), душевую и раздевалку, что делает баню удобной для семьи и гостей. Практичное решение без второго этажа делает проект доступным и функциональным.
Компактные размеры и лаконичный дизайн позволяют разместить баню даже на небольшом участке, создавая уголок для отдыха и релаксации.
| Описание | |
|---|---|
| 1. Фундамент |
|
| 2. Стеновой комплект |
|
| 3. Кровля |
|
| 4. Окна и двери |
|
| 5. Сопровождение строительства |
|
-
Заказать бесплатные изменения в проекте
или планировке
-
Получить фото и планировку этого проекта в WhatsApp или Telegram
Отправим
в течение
5 минут -
Получить расчет
стоимости в 3 вариантах комплектации
Остались вопросы?
Свяжитесь с нами или оставьте заявку — мы проконсультируем вас по всем вопросам.
Артем Ефремов
Эксперт по строительству
Похожие проекты
Другие- 6х6
- Размеры
- 30 м²
- Площадь помещений
Заполните форму и получите бесплатно: