

Монреаль
Компактная баня с панорамными окнами
и террасой для уютного загородного отдыха.
Размеры
8х4Площадь помещений
19 м²Пятно застройки
32 м²Этажность
1Технология
Проф. брусСтиль
СкандинавскийСтоимость
от 1 364 000 руб.Размеры
8х4Площадь помещений
19 м²Пятно застройки
32 м²Этажность
1Технология
Проф. брусСтиль
СкандинавскийПо вашему запросу мы бесплатно доработаем планировку, чтобы вы получили максимальное удовольствие от загородного отдыха
Предложим планировку, в которой каждый квадратный метр будет использован с максимальной эффективностью
Увеличим или уменьшим площадь здания. Изменим расположение окон и дверей. Добавим санузел, ещё одну спальню для гостей, террасу и так далее
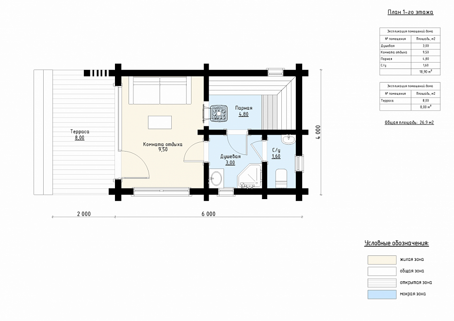
Изменить проектМонреаль: Финская баня из бруса – 8х4
Баня «Монреаль» общей площадью 27 м² выполнена из профилированного бруса, что обеспечивает высокую теплоизоляцию и экологичность.
Современный дизайн в тёмных тонах гармонично вписывается в любой ландшафт. Просторные панорамные окна наполняют помещение светом, создавая уютную атмосферу.
Планировка включает комнату отдыха площадью 10 м², где можно расслабиться после процедур, парную 5 м², душевую 3 м², а также компактный санузел 2 м². Терраса 8 м² дополнит отдых на свежем воздухе, идеально подходя для летних чаепитий.
Проект «Монреаль» станет отличным выбором для небольшой семьи или компании, ценящих комфорт и стиль. Эта баня станет прекрасным дополнением загородного участка, создавая уникальное место для отдыха круглый год.
| Описание | |
|---|---|
| 1. Фундамент |
|
| 2. Стеновой комплект |
|
| 3. Кровля |
|
| 4. Окна и двери |
|
| 5. Сопровождение строительства |
|
-
Заказать бесплатные изменения в проекте
или планировке
-
Получить фото и планировку этого проекта в WhatsApp или Telegram
Отправим
в течение
5 минут -
Получить расчет
стоимости в 3 вариантах комплектации
Остались вопросы?
Свяжитесь с нами или оставьте заявку — мы проконсультируем вас по всем вопросам.
Артем Ефремов
Эксперт по строительству
Похожие проекты
Другие- 8х4
- Размеры
- 19 м²
- Площадь помещений
Заполните форму и получите бесплатно: