Фриули

Двухуровневое пространство,
обеспечивающее комфортное зонирование.

Размеры

6х6

Площадь помещений

54 м²

Пятно застройки

36 м²

Этажность

2

Технология

Брус

Стиль

Фахверк

Стоимость

от 2 668 000 руб.
от 2 668 000 руб.

Размеры

6х6

Площадь помещений

54 м²

Пятно застройки

36 м²

Этажность

2

Технология

Брус

Стиль

Фахверк
Бесплатно
Бесплатно адаптируем планировку для вас

По вашему запросу мы бесплатно доработаем планировку, чтобы вы получили максимальное удовольствие от загородного отдыха

Предложим планировку, в которой каждый квадратный метр будет использован с максимальной эффективностью

Планировка

Увеличим или уменьшим площадь здания. Изменим расположение окон и дверей. Добавим санузел, ещё одну спальню для гостей, террасу и так далее

Изменить проект

Фриули: Баня из бруса – 6х6

Современная двухэтажная баня 6×6 метров в стиле фахверк сочетает простор и функциональность.

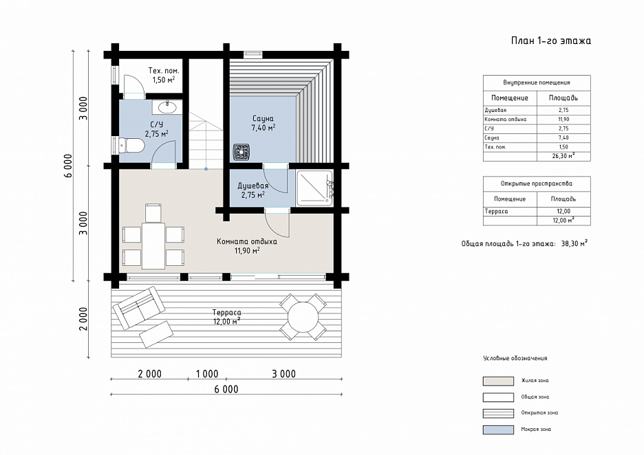
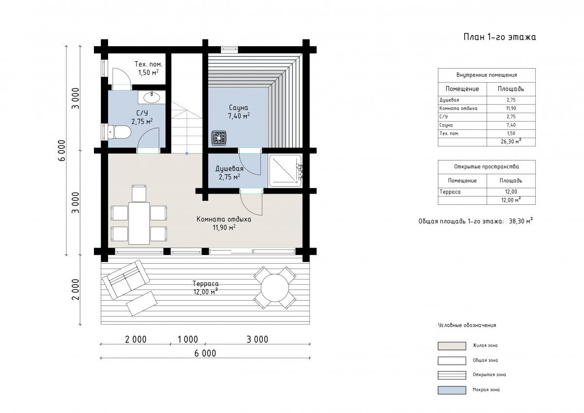
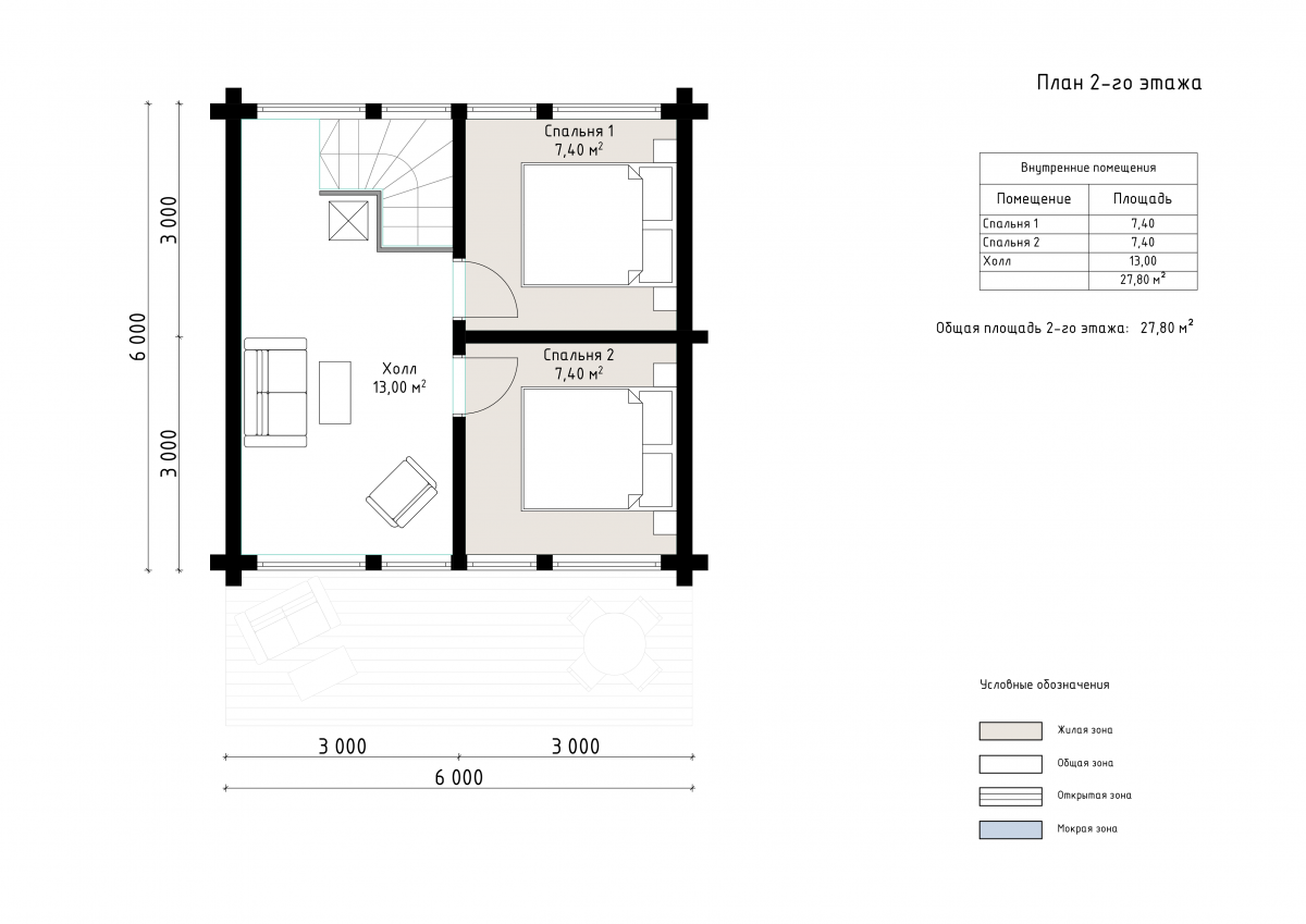
Построенная в скандинавском стиле, баня прекрасно вписывается в природный ландшафт и смотрится особенно уютно в окружении леса. Общая площадь составляет 66 м², включая просторную террасу площадью 12 м² для отдыха на свежем воздухе. На первом этаже расположены комната отдыха (почти 12 м²), сауна, душевая, санузел и техпомещение. Второй этаж предлагает две уютные спальни по 7 м² и просторный холл (13 м²), который можно использовать как зону отдыха или кабинет. Благодаря продуманной планировке баня сочетает в себе функциональность, комфорт и атмосферу уединения. Фриули идеально подойдёт для семьи из 3–5 человек или небольшой компании друзей. Это отличное решение для тех, кто ищет не просто баню, а полноценное место для отдыха и ночёвки на природе в течение всего года.

Оплата Доставка
Описание
1. Фундамент
  • Геодезические исследования (топосъемка) участка
  • Геологические иследования участка
  • Подбор фундамента
  • Проект фундамента
  • Привязка строения на местности
  • Забивные ж/б сваи
  • Монолитный ж/б ростверк
  • Приемка инженером технического надзора
2. Стеновой комплект
  • Рабочий проект КД
  • Подкладочная доска из лиственницы
  • Брус клееный стеновой производства, сечение 175х185(h), немецкий профиль
  • Балки и столбы сухие, клееные, строганные
  • Комплектующие, фурнитура
  • Лестница межэтажная черновая однопролетная
  • Доставка стенового комплекта
  • Сборка стенового комплекта
  • Приемка инженером технического надзора
3. Кровля
  • Рабочий проект КД кровли
  • Покрытие кровли - металлочерепица с полимерным покрытием
  • Стропила сухие
  • Утепление 250 мм
  • Гидро-ветрозащитная мембарана
  • Пароизоляционная пленка
  • Комплектующие, фурнитура
  • Водосточная система
  • Трубчатая система снегозадержания
  • Техническая вентиляция
  • Подшивная доска для свесов кровли
  • Доставка
  • Сборка
  • Приемка инженером технического надзора
4. Окна и двери
  • ПВХ-профиль 70 мм и фурнитура
  • Стеклопакеты энергосберегающие многофункциональные
  • Входная дверь
  • Комплектующие
  • Внешние наличники
  • Монтаж
  • Приемка инженером технического надзора
5. Сопровождение строительства
  • Организация проживания рабочих (бытовка)
  • Подключение бытовки к электричеству
  • Организация биотуалета
  • Вывоз мусора
  • Заказать бесплатные изменения в проекте
    или планировке
    Бесплатные изменения
  • Получить фото и планировку этого проекта в WhatsApp или Telegram Фото и планировки
    Отправим
    в течение
    5 минут
  • Получить расчет
    стоимости
    в 3 вариантах комплектации
    Расчет стоимости

Остались вопросы?

Свяжитесь с нами или оставьте заявку — мы проконсультируем вас по всем вопросам.

Артем Ефремов

Артем Ефремов

Эксперт по строительству

Выберите удобный для вас способ связи:

Похожие проекты

Другие
Смотрите также похожие
  • По стоимости
    Проекты бань до 5 млн. ₽
    Иконка
  • По площади
    Проекты бань до 60 м2
    Иконка
  • По размеру
    Проекты бань 6x6
    Иконка
  • По материалу
    Каркасные бани под ключ
    Иконка
Фриули

Двухуровневое пространство,
обеспечивающее комфортное зонирование.

Стоимость

от 2 668 000 руб.

Размеры

6х6

Площадь помещений

54 м²

Мы используем файлы cookie
для обеспечения наилучшего
взаимодействия с сайтом

наверх
Акция! До 6 декабря
Получите дизайн-проект бани под ваши размеры бесплатно
Отрисуем планировку бани
Рассчитаем стоимость
Поможем выбрать стиль
Введите телефон, чтобы получить доступ к документу:
Заполните это поле
Получить дизайн-проект
Я согласен с условиями политики конфиденциальности