





Генк
Баня с просторной комнатой отдыха,
создающей уютную атмосферу для встреч.
Размеры
6х8Площадь помещений
30 м²Пятно застройки
48 м²Этажность
1Технология
БрусСтиль
скандинавияСтоимость
от 1 704 000 руб.Размеры
6х8Площадь помещений
30 м²Пятно застройки
48 м²Этажность
1Технология
БрусСтиль
скандинавияПо вашему запросу мы бесплатно доработаем планировку, чтобы вы получили максимальное удовольствие от загородного отдыха
Предложим планировку, в которой каждый квадратный метр будет использован с максимальной эффективностью
Увеличим или уменьшим площадь здания. Изменим расположение окон и дверей. Добавим санузел, ещё одну спальню для гостей, террасу и так далее
Изменить проектГенк: Баня из бруса – 6х8
Элегантная баня «Генк» сочетает в себе традиционный уют и современный комфорт.
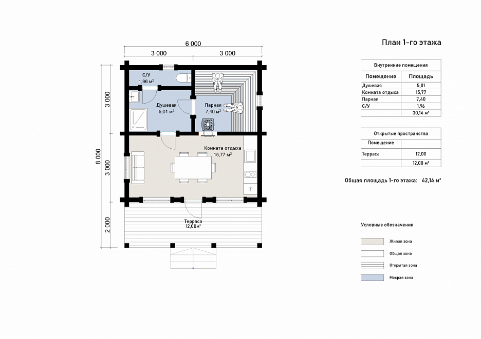
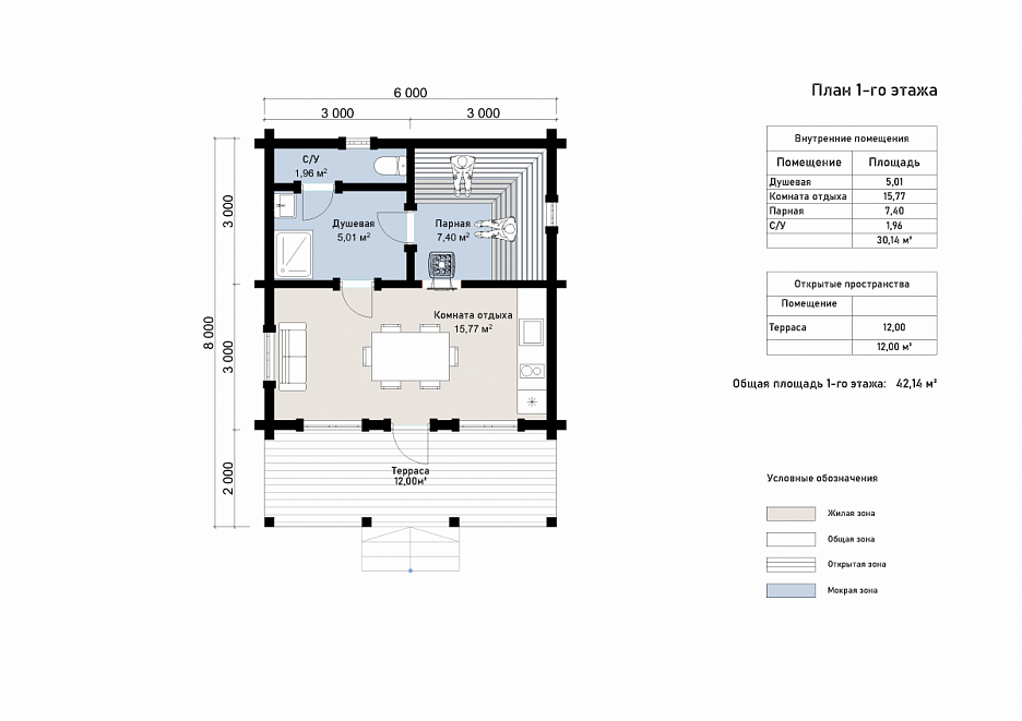
Постройка выполнена из профилированного бруса, что обеспечивает натуральность, экологичность и отличную теплоизоляцию. Архитектура лаконична: одноэтажное здание с двухскатной крышей и уютной крытой террасой площадью 12 м². Общая площадь строения составляет 42 м². Внутреннее пространство продумано до мелочей: здесь есть комната отдыха (около 16 м²), вместительная душевая (5 м²), полноценная парная (7 м²) и санузел (2 м²). Просторная гостиная зона с кухонным уголком отлично подойдёт как для уединённого отдыха, так и для приёма гостей. «Генк» — идеальный выбор для загородного участка, семейной пары или небольшой компании, ценящих комфорт, эстетику и функциональность. Баня отлично подойдёт как для регулярного использования, так и в качестве гостевого дома.
| Описание | |
|---|---|
| 1. Фундамент |
|
| 2. Стеновой комплект |
|
| 3. Кровля |
|
| 4. Окна и двери |
|
| 5. Сопровождение строительства |
|
-
Заказать бесплатные изменения в проекте
или планировке
-
Получить фото и планировку этого проекта в WhatsApp или Telegram
Отправим
в течение
5 минут -
Получить расчет
стоимости в 3 вариантах комплектации
Остались вопросы?
Свяжитесь с нами или оставьте заявку — мы проконсультируем вас по всем вопросам.
Артем Ефремов
Эксперт по строительству
Похожие проекты
Другие- 6х8
- Размеры
- 30 м²
- Площадь помещений
Заполните форму и получите бесплатно: