Баня Аскитон

Баня с характером дома —
для отдыха, уединения и приёма гостей.

Размеры

14х11

Площадь помещений

185 м²

Пятно застройки

147 м²

Этажность

2

Технология

Камень

Стиль

Скандинавия

Стоимость

от 14 800 000 ₽
от 14 800 000 ₽

Размеры

14х11

Площадь помещений

185 м²

Пятно застройки

147 м²

Этажность

2

Технология

Камень

Стиль

Скандинавия
Бесплатно
Бесплатно адаптируем планировку для вас

По вашему запросу мы бесплатно доработаем планировку, чтобы вы получили максимальное удовольствие от загородного отдыха

Предложим планировку, в которой каждый квадратный метр будет использован с максимальной эффективностью

Планировка

Увеличим или уменьшим площадь здания. Изменим расположение окон и дверей. Добавим санузел, ещё одну спальню для гостей, террасу и так далее

Изменить проект

Баня Аскитон: Банный комплекс – 14х11

Баня «Аскитон» — это просторный проект, совмещающий в себе комфорт дома и функциональность полноценного банного комплекса.

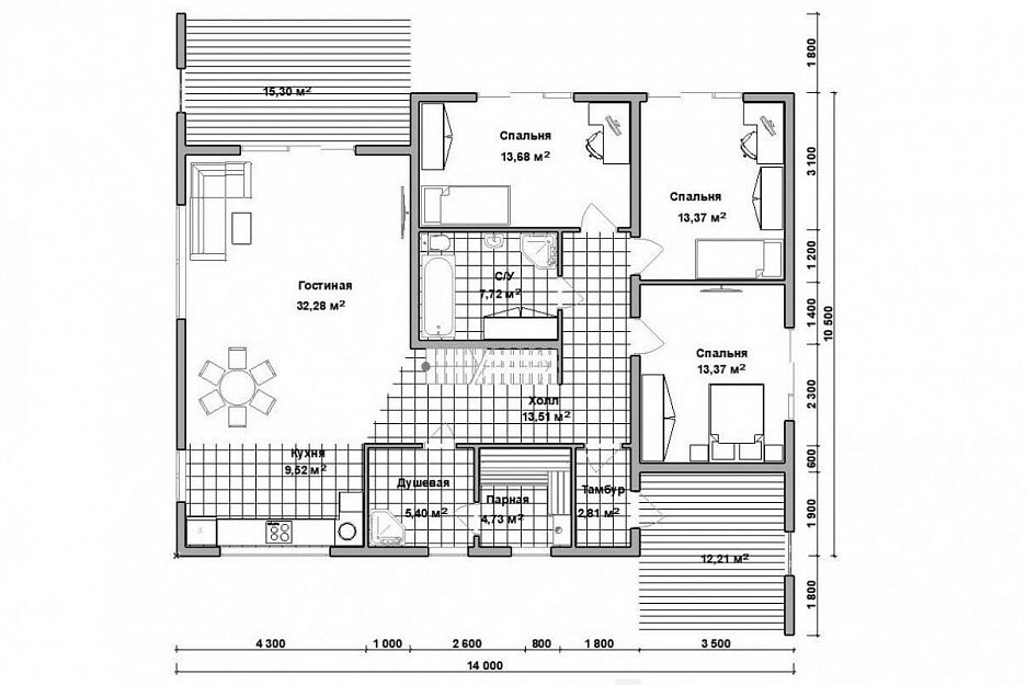
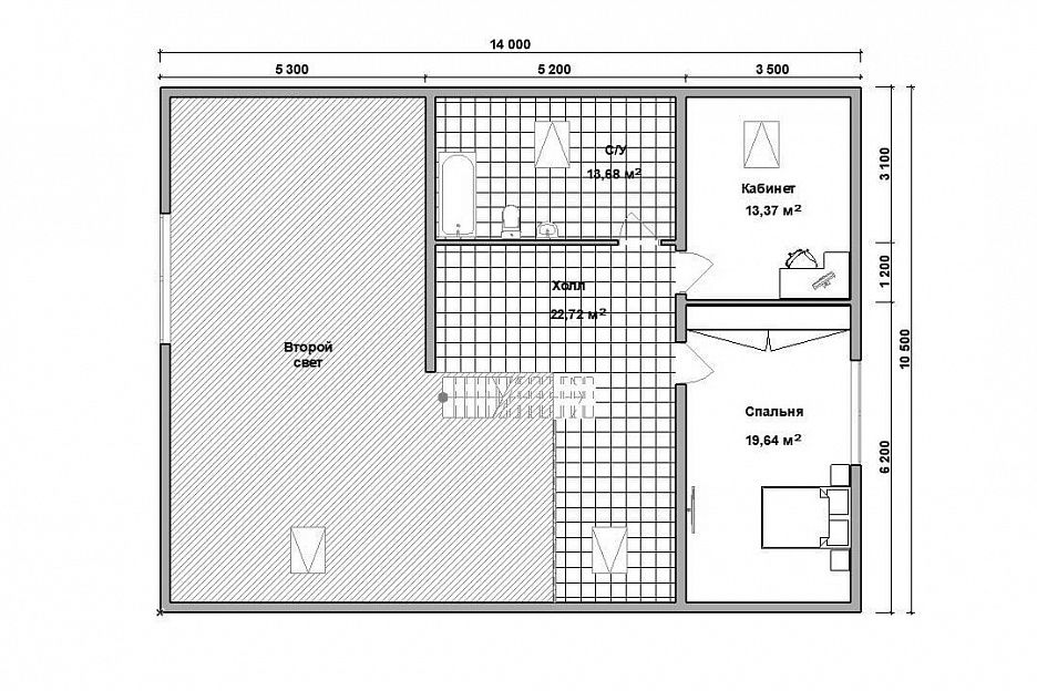
Общая площадь постройки составляет 168 м². Здание выполнено в скандинавском стиле с лаконичной архитектурой и высокой энергоэффективностью. В отделке фасада применяются деревянные панели, декоративная штукатурка и металлочерепица в тёмных тонах. На первом этаже организованы четыре спальни, просторная гостиная с панорамными окнами и выходом на террасу, кухня, душевая и парная. Второй этаж включает спальню, кабинет, санузел и холл с выходом на открытую зону второго света. Отдельное внимание уделено пространству: в доме много света, открытые зоны создают ощущение свободы и уюта. Пристроенный навес на два автомобиля делает проект особенно удобным для семьи с машинами. «Аскитон» подойдёт тем, кто ищет просторную баню-дом для отдыха большой семьёй или компании. Также это отличный выбор для создания объекта глэмпинга или загородного СПА-комплекса.
Похожие проекты вы найдете в категориях каталога
Оплата Доставка
Описание
1. Фундамент
  • Геодезические исследования (топосъемка) участка
  • Геологические иследования участка
  • Подбор фундамента
  • Проект фундамента
  • Привязка строения на местности
  • Монолитная железобетонная плита 250 мм
  • Закладные под коммуникации
  • Приемка инженером технического надзора
2. Стеновой комплект
  • Стеновой комплект
  • Рабочий проект АР
  • Теплая керамика Porotherm 38 Thermo
  • Железобетонные перемычки оконных и дверных проемов
  • Теплая кладочная смесь Porotherm TM
  • Несущие колонны из полнотелого кирпича
  • Сборка стенового комплекта
  • Приемка инженером технического надзора
3. Кровля
  • Рабочий проект КД кровли
  • Покрытие кровли - металлочерепица с полимерным покрытием
  • Стропила сухие
  • Утепление 250 мм
  • Гидро-ветрозащитная мембарана
  • Пароизоляционная пленка
  • Комплектующие, фурнитура
  • Водосточная система
  • Трубчатая система снегозадержания
  • Техническая вентиляция
  • Подшивная доска для свесов кровли
  • Доставка
  • Сборка
  • Приемка инженером технического надзора
4. Окна и двери
  • Окна и двери
  • ПВХ-профиль 70 мм и фурнитура
  • Стеклопакеты энергосберегающие многофункциональные
  • Входная дверь
  • Комплектующие
  • Монтаж
  • Приемка инженером технического надзора
5. Сопровождение строительства
  • Организация проживания рабочих (бытовка)
  • Подключение бытовки к электричеству
  • Организация биотуалета
  • Вывоз мусора

Остались вопросы?

Свяжитесь с нами или оставьте заявку — мы проконсультируем вас по всем вопросам.

Артем Ефремов

Артем Ефремов

Эксперт по строительству

Выберите удобный для вас способ связи:

Смотрите также похожие
  • По стоимости
    Проекты бань до 5 млн. ₽
    Иконка
  • По площади
    Проекты бань до 60 м2
    Иконка
  • По размеру
    Проекты бань 6x6
    Иконка
  • По материалу
    Каркасные бани под ключ
    Иконка
Баня Аскитон

Баня с характером дома —
для отдыха, уединения и приёма гостей.

Стоимость

от 14 800 000 ₽

Размеры

14х11

Площадь помещений

185 м²

Мы используем файлы cookie
для обеспечения наилучшего
взаимодействия с сайтом

наверх
Акция! До 14 февраля
Получите дизайн-проект бани под ваши размеры бесплатно
Отрисуем планировку бани
Рассчитаем стоимость
Поможем выбрать стиль
Введите телефон, чтобы получить доступ к документу:
Заполните это поле
Получить дизайн-проект
Я согласен с условиями политики конфиденциальности