

Баня Бангор
Стиль, комфорт и функциональность —
баня для круглогодичного отдыха.
Размеры
11х9Площадь помещений
154 м²Пятно застройки
178 м²Этажность
2Технология
КаменьСтиль
СкандинавияСтоимость
от 12 320 000 руб.Размеры
11х9Площадь помещений
154 м²Пятно застройки
178 м²Этажность
2Технология
КаменьСтиль
СкандинавияПо вашему запросу мы бесплатно доработаем планировку, чтобы вы получили максимальное удовольствие от загородного отдыха
Предложим планировку, в которой каждый квадратный метр будет использован с максимальной эффективностью
Увеличим или уменьшим площадь здания. Изменим расположение окон и дверей. Добавим санузел, ещё одну спальню для гостей, террасу и так далее
Изменить проектБаня Бангор: Модульная баня – 11х9
Баня «Бангор» – это современный проект с продуманной планировкой, выполненный в модульной технологии.
Здание выполнено в скандинавском стиле с лаконичным силуэтом и высоким двускатным кровом. Фасад отделан металлическими панелями в сочетании с деревянными вставками, что делает проект выразительным и минималистичным.
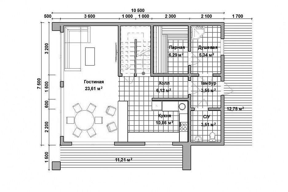
Планировка включает просторную гостиную (24 м²) с выходом на террасу, кухню, парную, душевую, санузел и прихожую. Пространство организовано так, чтобы можно было отдыхать компанией до 6 человек, при этом сохраняя зонированность и комфорт. На втором этаже можно предусмотреть дополнительное помещение или зону отдыха.
Проект подойдёт тем, кто ценит эстетику современного архитектурного стиля, любит проводить выходные за городом и ищет продуманное решение для сезонного или круглогодичного использования. Баня может служить как самостоятельной постройкой, так и частью загородного комплекса.
| Описание | |
|---|---|
| 1. Фундамент |
|
| 2. Стеновой комплект |
|
| 3. Кровля |
|
| 4. Окна и двери |
|
| 5. Сопровождение строительства |
|
-
Заказать бесплатные изменения в проекте
или планировке
-
Получить фото и планировку этого проекта в WhatsApp или Telegram
Отправим
в течение
5 минут -
Получить расчет
стоимости в 3 вариантах комплектации
Остались вопросы?
Свяжитесь с нами или оставьте заявку — мы проконсультируем вас по всем вопросам.
Артем Ефремов
Эксперт по строительству
Похожие проекты
Другие- 11х9
- Размеры
- 154 м²
- Площадь помещений
Заполните форму и получите бесплатно: