
Баня Карелия
Финская баня с просторной террасой,
объединяющая комфорт и традиции.
Размеры
6х8Площадь помещений
30 м²Пятно застройки
48 м²Этажность
1Технология
БревноСтиль
ДеревенскийСтоимость
от 1 654 000 руб.Размеры
6х8Площадь помещений
30 м²Пятно застройки
48 м²Этажность
1Технология
БревноСтиль
ДеревенскийПо вашему запросу мы бесплатно доработаем планировку, чтобы вы получили максимальное удовольствие от загородного отдыха
Предложим планировку, в которой каждый квадратный метр будет использован с максимальной эффективностью
Увеличим или уменьшим площадь здания. Изменим расположение окон и дверей. Добавим санузел, ещё одну спальню для гостей, террасу и так далее
Изменить проектКарелия: Баня из бревна – 6х8
Финская баня из бревна 6×8 м «Карелия» — уютный проект для комфортного отдыха в окружении природы.
Визуально баня напоминает лесную избушку: с теплым светом в окнах, просторной террасой и выразительным кровельным свесом, который надежно защищает входную зону. В основе проекта — экологически чистый деревянный сруб, подчеркивающий эстетику русской природы и идеально вписывающийся в любую загородную локацию.
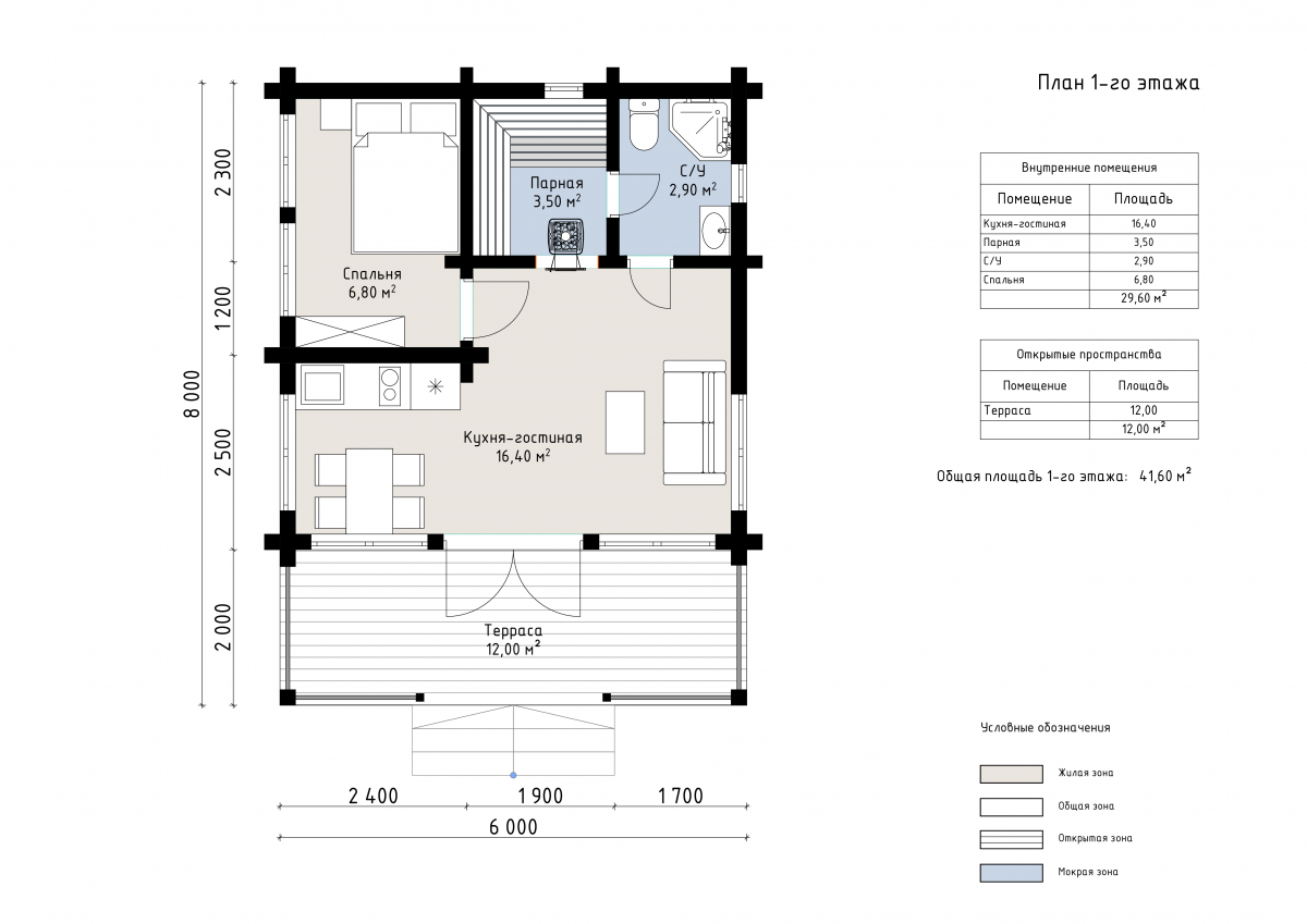
Площадь постройки составляет 42 м², из которых 30 м² — закрытые внутренние помещения. Пространство включает в себя кухню-гостиную площадью 16 м², спальню, санузел, а также парную площадью 3,5 м². Удобная терраса на 12 м² отлично подходит для отдыха на свежем воздухе или вечернего чаепития. Благодаря рациональной планировке, баня одновременно компактна и функциональна.
«Карелия» станет прекрасным выбором для тех, кто ищет традиционную деревянную баню с возможностью ночевки и длительного пребывания. Идеальна для дачи, загородного участка или как часть гостевого комплекса на базе отдыха. Ее архитектура сочетает в себе простоту, тепло и настоящую атмосферу уединения с природой.
| Описание | |
|---|---|
| 1. Фундамент |
|
| 2. Стеновой комплект |
|
| 3. Кровля |
|
| 4. Окна и двери |
|
| 5. Сопровождение строительства |
|
-
Заказать бесплатные изменения в проекте
или планировке
-
Получить фото и планировку этого проекта в WhatsApp или Telegram
Отправим
в течение
5 минут -
Получить расчет
стоимости в 3 вариантах комплектации
Остались вопросы?
Свяжитесь с нами или оставьте заявку — мы проконсультируем вас по всем вопросам.
Артем Ефремов
Эксперт по строительству
Похожие проекты
Другие- 6х8
- Размеры
- 30 м²
- Площадь помещений
Заполните форму и получите бесплатно: