
Баня Харрон
Баня из бревна в традиционном стиле,
идеальна для отдыха небольшой компании.
Размеры
6х6Площадь помещений
15 м²Пятно застройки
36 м²Этажность
1Технология
БревноСтиль
ДеревенскийСтоимость
от 1 240 000 руб.Размеры
6х6Площадь помещений
15 м²Пятно застройки
36 м²Этажность
1Технология
БревноСтиль
ДеревенскийПо вашему запросу мы бесплатно доработаем планировку, чтобы вы получили максимальное удовольствие от загородного отдыха
Предложим планировку, в которой каждый квадратный метр будет использован с максимальной эффективностью
Увеличим или уменьшим площадь здания. Изменим расположение окон и дверей. Добавим санузел, ещё одну спальню для гостей, террасу и так далее
Изменить проектХаррон: Баня из бревна – 6х6
Баня из бревна «Харрон» – это уютное место для отдыха, выполненное в традиционном стиле с использованием натурального бревна.
Лаконичный архитектурный облик с деревянным крыльцом, массивными перилами и добротной кровлей подчеркивает классический стиль и природную эстетику.
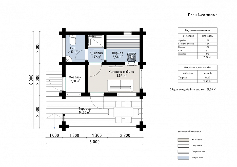
Планировка продумана до мелочей: в помещении есть комната отдыха (5,5 м²), душевая (1,7 м²), полноценная парная (3,5 м²), туалет (2,1 м²) и дополнительное техпомещение (хозблок) площадью 2,1 м². Просторная открытая терраса (14 м²) становится отличным местом для отдыха на свежем воздухе. Все помещения удобно соединены, создавая логичную и комфортную схему перемещения.
Строительство осуществляется из оцилиндрованного бревна, что обеспечивает естественную вентиляцию, отличную теплоизоляцию и долговечность. Природный материал создает уникальный микроклимат внутри бани и наполняет воздух ароматом дерева.
«Харрон» отлично подойдет для дачного или загородного участка, в качестве семейной парной или гостевого банного домика. Это решение для тех, кто хочет получить атмосферу настоящей бани без излишеств — просто, функционально и со вкусом.
| Описание | |
|---|---|
| 1. Фундамент |
|
| 2. Стеновой комплект |
|
| 3. Кровля |
|
| 4. Окна и двери |
|
| 5. Сопровождение строительства |
|
-
Заказать бесплатные изменения в проекте
или планировке
-
Получить фото и планировку этого проекта в WhatsApp или Telegram
Отправим
в течение
5 минут -
Получить расчет
стоимости в 3 вариантах комплектации
Остались вопросы?
Свяжитесь с нами или оставьте заявку — мы проконсультируем вас по всем вопросам.
Артем Ефремов
Эксперт по строительству
Похожие проекты
Другие- 6х6
- Размеры
- 15 м²
- Площадь помещений
Заполните форму и получите бесплатно: