
Баня Магдебург 5
Современный проект с акцентом на эргономику
и стильное оформление.
Размеры
6х6Площадь помещений
30 м²Пятно застройки
36 м²Этажность
1Технология
Клееный брусСтиль
ФахверкСтоимость
от 3 914 000 руб.Размеры
6х6Площадь помещений
30 м²Пятно застройки
36 м²Этажность
1Технология
Клееный брусСтиль
ФахверкПо вашему запросу мы бесплатно доработаем планировку, чтобы вы получили максимальное удовольствие от загородного отдыха
Предложим планировку, в которой каждый квадратный метр будет использован с максимальной эффективностью
Увеличим или уменьшим площадь здания. Изменим расположение окон и дверей. Добавим санузел, ещё одну спальню для гостей, террасу и так далее
Изменить проектМагдебург 5: Баня из клееного бруса – 6х6
Баня 6х6 м «Магдебург 5» общей площадью 36 м² выполнена в современном стиле.
Строгие линии фасада, большие панорамные окна и эффектная кровля подчеркивают эстетичность постройки и делают её гармоничной частью любого загородного участка.
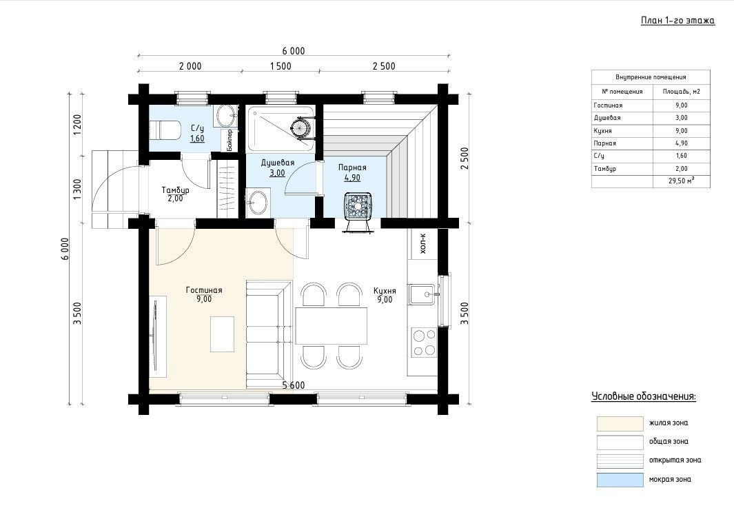
Общая площадь строения — 29,5 м². Внутреннее пространство включает: просторную гостиную (9 м²), кухню-столовую (9 м²), душевую (3 м²), парную (4,9 м²), санузел (1,6 м²) и тамбур (2 м²). Планировка максимально эргономична — каждый метр продуман и эффективно используется.
Клееный брус обеспечивает надежность и экологичность, а современное утепление и остекление позволяют комфортно использовать баню круглый год. Проект отлично подойдёт как для семейного отдыха, так и в качестве гостевого дома с банным комплексом.
| Описание | |
|---|---|
| 1. Фундамент |
|
| 2. Стеновой комплект |
|
| 3. Кровля |
|
| 4. Окна и двери |
|
| 5. Сопровождение строительства |
|
-
Заказать бесплатные изменения в проекте
или планировке
-
Получить фото и планировку этого проекта в WhatsApp или Telegram
Отправим
в течение
5 минут -
Получить расчет
стоимости в 3 вариантах комплектации
Остались вопросы?
Свяжитесь с нами или оставьте заявку — мы проконсультируем вас по всем вопросам.
Артем Ефремов
Эксперт по строительству
Похожие проекты
Другие- 6х6
- Размеры
- 30 м²
- Площадь помещений
Заполните форму и получите бесплатно: