Кингстон

Баня с функциональными зонами и уютным
интерьером, созданная для семейного отдыха.

Размеры

6х6

Площадь помещений

30 м²

Пятно застройки

36 м²

Этажность

1

Технология

Клееный брус

Стиль

деревенский

Стоимость

от 3 802 400 ₽
от 3 802 400 ₽

Размеры

6х6

Площадь помещений

30 м²

Пятно застройки

36 м²

Этажность

1

Технология

Клееный брус

Стиль

деревенский
Бесплатно
Бесплатно адаптируем планировку для вас

По вашему запросу мы бесплатно доработаем планировку, чтобы вы получили максимальное удовольствие от загородного отдыха

Предложим планировку, в которой каждый квадратный метр будет использован с максимальной эффективностью

Планировка

Увеличим или уменьшим площадь здания. Изменим расположение окон и дверей. Добавим санузел, ещё одну спальню для гостей, террасу и так далее

Изменить проект

Кингстон: Финская баня из клееного бруса – 6х6

Финская баня из клееного бруса размером 6х6 м «Кингстон» сочетает в себе уют и функциональность.

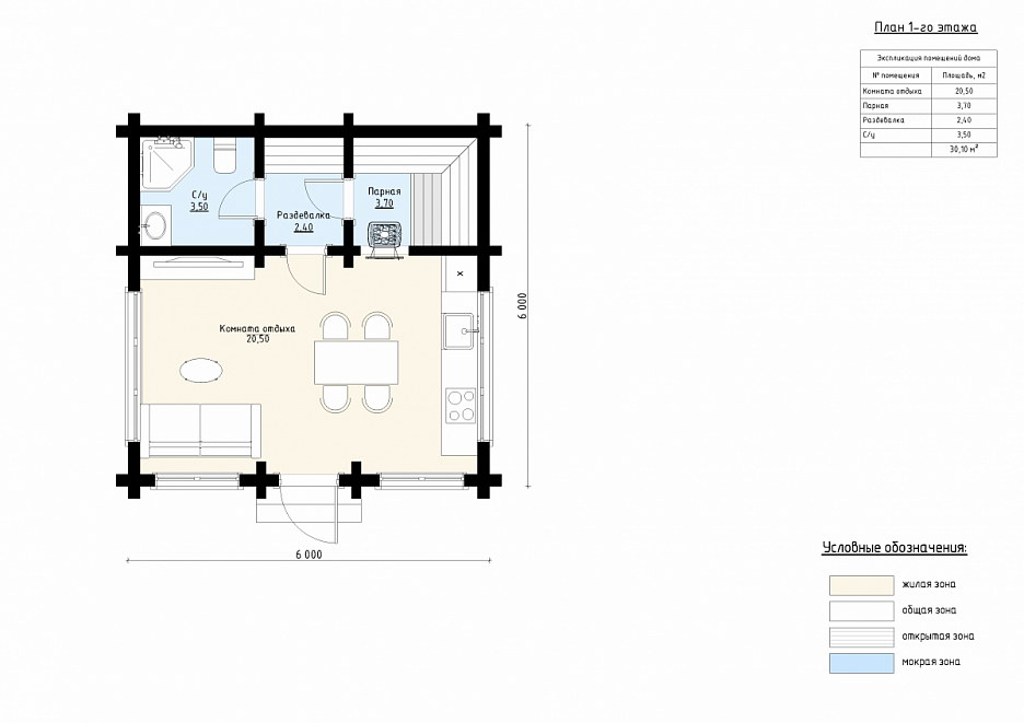
Общая площадь проекта составляет 36 м², что делает его идеальным выбором для небольших участков и семейного отдыха. Баня выполнена в скандинавском стиле, подчеркивающем натуральные текстуры и современные архитектурные решения. Внутренние помещения занимают 30 м² и включают просторную комнату отдыха площадью 21 м², парную 4 м², раздевалку 3 м² и санузел 3 м². Каждая деталь продумана для максимального комфорта. Проект «Кингстон» идеально подходит для тех, кто хочет насладиться традиционным банным отдыхом в сочетании с современным комфортом. Компактный размер и стильное оформление делают эту баню прекрасным выбором для любого участка.
Оплата Доставка
Описание
1. Фундамент
  • Геодезические исследования (топосъемка) участка
  • Геологические иследования участка
  • Подбор фундамента
  • Проект фундамента
  • Привязка строения на местности
  • Забивные ж/б сваи
  • Монолитный ж/б ростверк
  • Приемка инженером технического надзора
2. Стеновой комплект
  • Рабочий проект КД
  • Подкладочная достка из лиственницы
  • Брус клееный стеновой производства, сечение 175х185(h), немецкий профиль
  • Балки и столбы сухие, клееные, строганные
  • Комплектующие, фурнитура
  • Лестница межэтажная черновая однопролетная
  • Доставка стеневого комплекта
  • Сборка стеневого комплекта
  • Приемка инженером технического надзора
3. Кровля
  • Рабочий проект КД кровли
  • Покрытие кровли - металлочерепица с полимерным покрытием
  • Стропила сухие
  • Утепление 250 мм
  • Гидро-ветрозащитная мембарана
  • Пароизоляционная пленка
  • Комплектующие, фурнитура
  • Водосточная система
  • Трубчатая система снегозадержания
  • Техническая вентиляция
  • Подшивная доска для свесов кровли
  • Доставка
  • Сборка
  • Приемка инженером технического надзора
4. Окна и двери
  • ПВХ-профиль Rehau 70мм и фурнитура Siegenia и Roto (Германия)
  • Стеклопакеты энергосберегающие многофункциональные 40 мм
  • Входная металлическая дверь
  • Комплектующие
  • Внешние наличники
  • Монтаж
  • Приемка инженером технического надзора
5. Сопровождение строительства
  • Организация проживания рабочих (бытовка)
  • Подключение бытовки к электричеству
  • Организация биотуалета
  • Вывоз мусора

Остались вопросы?

Свяжитесь с нами или оставьте заявку — мы проконсультируем вас по всем вопросам.

Артем Ефремов

Артем Ефремов

Эксперт по строительству

Выберите удобный для вас способ связи:

Похожие проекты

Другие
Смотрите также похожие
  • По стоимости
    Проекты бань до 5 млн. ₽
    Иконка
  • По площади
    Проекты бань до 60 м2
    Иконка
  • По размеру
    Проекты бань 6x6
    Иконка
  • По материалу
    Каркасные бани под ключ
    Иконка
Кингстон

Баня с функциональными зонами и уютным
интерьером, созданная для семейного отдыха.

Стоимость

от 3 802 400 ₽

Размеры

6х6

Площадь помещений

30 м²

Мы используем файлы cookie
для обеспечения наилучшего
взаимодействия с сайтом

наверх
Акция! До 15 февраля
Получите дизайн-проект бани под ваши размеры бесплатно
Отрисуем планировку бани
Рассчитаем стоимость
Поможем выбрать стиль
Введите телефон, чтобы получить доступ к документу:
Заполните это поле
Получить дизайн-проект
Я согласен с условиями политики конфиденциальности