

Кингстон
Идеальный вариант для круглогодичного отдыха,
в гармонии с природой.
Размеры
6х6Площадь помещений
30 м²Пятно застройки
36 м²Этажность
1Технология
БревноСтиль
ШалеСтоимость
от 1 240 000 руб.Размеры
6х6Площадь помещений
30 м²Пятно застройки
36 м²Этажность
1Технология
БревноСтиль
ШалеПо вашему запросу мы бесплатно доработаем планировку, чтобы вы получили максимальное удовольствие от загородного отдыха
Предложим планировку, в которой каждый квадратный метр будет использован с максимальной эффективностью
Увеличим или уменьшим площадь здания. Изменим расположение окон и дверей. Добавим санузел, ещё одну спальню для гостей, террасу и так далее
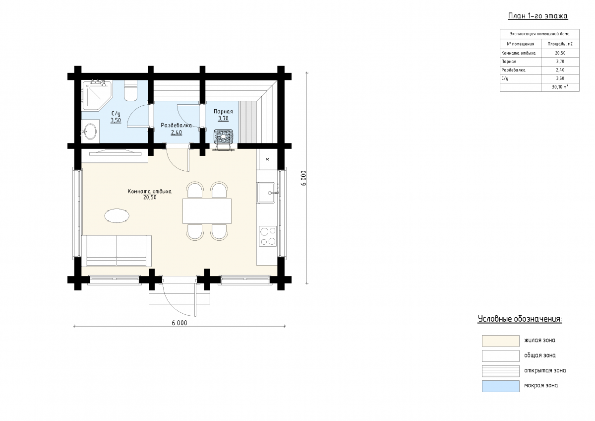
Изменить проектКингстон: Финская баня из бревна – 6х6
Компактная и уютная баня "Кингстон" идеально подойдет для небольшого участка.
Классический бревенчатый фасад, просторные окна и продуманная планировка делают этот проект стильным и функциональным. Внутреннее пространство объединяет гостиную-кухню площадью 21 м², создавая комфортную зону отдыха. Парная (4 м²) и душевая (3 м²) расположены рядом, обеспечивая удобство пользования.
Вход в баню украшен небольшим крыльцом, а крупные окна открывают вид на участок, наполняя интерьер естественным светом. Благодаря компактным размерам (6х6 м), «Кингстон» гармонично впишется даже в небольшое пространство, создавая уютное место для отдыха в любое время года.
| Описание | |
|---|---|
| 1. Фундамент |
|
| 2. Стеновой комплект |
|
| 3. Кровля |
|
| 4. Окна и двери |
|
| 5. Сопровождение строительства |
|
-
Заказать бесплатные изменения в проекте
или планировке
-
Получить фото и планировку этого проекта в WhatsApp или Telegram
Отправим
в течение
5 минут -
Получить расчет
стоимости в 3 вариантах комплектации
Остались вопросы?
Свяжитесь с нами или оставьте заявку — мы проконсультируем вас по всем вопросам.
Артем Ефремов
Эксперт по строительству
Похожие проекты
Другие- 6х6
- Размеры
- 30 м²
- Площадь помещений
Заполните форму и получите бесплатно: