

Финская баня из бруса Рейн
Надёжный выбор
для тех, кто любит функциональность и стиль.
Размеры
8х8Площадь помещений
36 м²Пятно застройки
58 м²Этажность
1Технология
Проф. брусСтиль
СкандинавияСтоимость
от 3 256 000 руб.Размеры
8х8Площадь помещений
36 м²Пятно застройки
58 м²Этажность
1Технология
Проф. брусСтиль
СкандинавияПо вашему запросу мы бесплатно доработаем планировку, чтобы вы получили максимальное удовольствие от загородного отдыха
Предложим планировку, в которой каждый квадратный метр будет использован с максимальной эффективностью
Увеличим или уменьшим площадь здания. Изменим расположение окон и дверей. Добавим санузел, ещё одну спальню для гостей, террасу и так далее
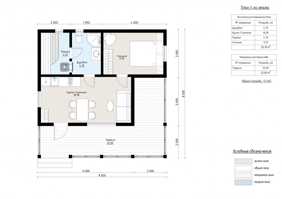
Изменить проектФинская баня из бруса Рейн: Финская баня – 8х8
Финская баня из бруса «Рейн» — это уютный и компактный проект, выполненный в стиле скандинавского минимализма.
Баня строится из профилированного бруса, что обеспечивает отличную теплоизоляцию и экологичность. Площадь постройки составляет 57 м², включая просторную открытую террасу площадью 22 м², которая идеально подходит для летнего отдыха.
| Описание | |
|---|---|
| 1. Фундамент |
|
| 2. Стеновой комплект |
|
| 3. Кровля |
|
| 4. Окна и двери |
|
| 5. Сопровождение строительства |
|
-
Заказать бесплатные изменения в проекте
или планировке
-
Получить фото и планировку этого проекта в WhatsApp или Telegram
Отправим
в течение
5 минут -
Получить расчет
стоимости в 3 вариантах комплектации
Остались вопросы?
Свяжитесь с нами или оставьте заявку — мы проконсультируем вас по всем вопросам.
Артем Ефремов
Эксперт по строительству
Похожие проекты
Другие- 8х8
- Размеры
- 36 м²
- Площадь помещений
Заполните форму и получите бесплатно: