
Магдебург
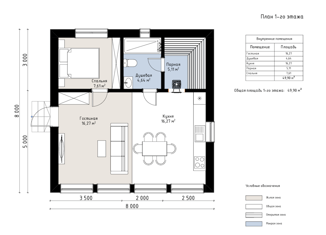
Размеры
8x8Площадь помещений
49 м²Пятно застройки
64 м²Этажность
1Технология
КаменьСтиль
ФахверкСтоимость
от 3 236 000 руб.Размеры
8x8Площадь помещений
49 м²Пятно застройки
64 м²Этажность
1Технология
КаменьСтиль
ФахверкПо вашему запросу мы бесплатно доработаем планировку, чтобы вы получили максимальное удовольствие от загородного отдыха
Предложим планировку, в которой каждый квадратный метр будет использован с максимальной эффективностью
Увеличим или уменьшим площадь здания. Изменим расположение окон и дверей. Добавим санузел, ещё одну спальню для гостей, террасу и так далее
Изменить проектМагдебург: Баня из газоблока – 8x8
| Описание | |
|---|---|
| 1. Фундамент |
|
| 2. Стеновой комплект |
|
| 3. Кровля |
|
| 4. Окна и двери |
|
| 5. Сопровождение строительства |
|
-
Заказать бесплатные изменения в проекте
или планировке
-
Получить фото и планировку этого проекта в WhatsApp или Telegram
Отправим
в течение
5 минут -
Получить расчет
стоимости в 3 вариантах комплектации
Остались вопросы?
Свяжитесь с нами или оставьте заявку — мы проконсультируем вас по всем вопросам.
Артем Ефремов
Эксперт по строительству
Похожие проекты
Другие- 8x8
- Размеры
- 49 м²
- Площадь помещений
Заполните форму и получите бесплатно: