



Линарес
Современный скандинавский стиль,
где лаконичность сочетается с комфортом.
Размеры
8х8Площадь помещений
64 м²Пятно застройки
103 м²Этажность
1Технология
КаркаснаяСтиль
СкандинавияСтоимость
от 4 676 000 руб.Размеры
8х8Площадь помещений
64 м²Пятно застройки
103 м²Этажность
1Технология
КаркаснаяСтиль
СкандинавияПо вашему запросу мы бесплатно доработаем планировку, чтобы вы получили максимальное удовольствие от загородного отдыха
Предложим планировку, в которой каждый квадратный метр будет использован с максимальной эффективностью
Увеличим или уменьшим площадь здания. Изменим расположение окон и дверей. Добавим санузел, ещё одну спальню для гостей, террасу и так далее
Изменить проектЛинарес: Каркасная баня – 8х8
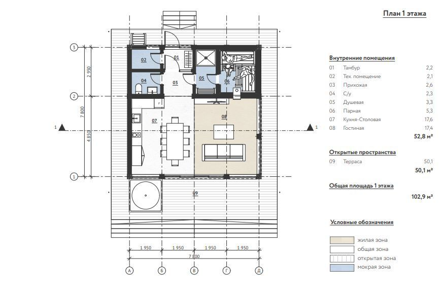
Финская баня из каркаса 8×8 «Линарес» – это просторное и стильное решение для тех, кто ценит комфорт и эстетику.
Гостиная площадью 17 м² совмещена с кухней-столовой на 18 м², создавая просторное пространство для отдыха и общения.
В бане предусмотрена уютная парная 5 м², душевое помещение 3 м² и санузел 3 м². Для хранения инвентаря и оборудования предусмотрено техническое помещение площадью 2 м². Просторная терраса 50 м² окружает баню, позволяя наслаждаться природой в любое время года.
Большие панорамные окна создают ощущение легкости и простора, а деревянная отделка в сочетании с современной архитектурой придает проекту стильный вид.
| Описание | |
|---|---|
| 1. Фундамент |
|
| 2. Стеновой комплект |
|
| 3. Кровля |
|
| 4. Окна и двери |
|
| 5. Сопровождение строительства |
|
-
Заказать бесплатные изменения в проекте
или планировке
-
Получить фото и планировку этого проекта в WhatsApp или Telegram
Отправим
в течение
5 минут -
Получить расчет
стоимости в 3 вариантах комплектации
Остались вопросы?
Свяжитесь с нами или оставьте заявку — мы проконсультируем вас по всем вопросам.
Артем Ефремов
Эксперт по строительству
Похожие проекты
Другие- 8х8
- Размеры
- 64 м²
- Площадь помещений
Заполните форму и получите бесплатно: