CUBE 4

Просторная баня с эргономичной планировкой
и открытой зоной приема гостей

Размеры

8х8

Площадь помещений

51 м²

Пятно застройки

64 м²

Этажность

1

Технология

Каркасная

Стиль

Минимализм

Стоимость

от 3 168 000 руб.
от 3 168 000 руб.

Размеры

8х8

Площадь помещений

51 м²

Пятно застройки

64 м²

Этажность

1

Технология

Каркасная

Стиль

Минимализм
Бесплатно
Бесплатно адаптируем планировку для вас

По вашему запросу мы бесплатно доработаем планировку, чтобы вы получили максимальное удовольствие от загородного отдыха

Предложим планировку, в которой каждый квадратный метр будет использован с максимальной эффективностью

Планировка

Увеличим или уменьшим площадь здания. Изменим расположение окон и дверей. Добавим санузел, ещё одну спальню для гостей, террасу и так далее

Изменить проект

CUBE 4: Каркасная баня – 8х8

Баня Cube 4 (8×8) — проект в современном минималистичном стиле, выполненный из натуральной древесины с вертикальной обшивкой, подчеркивающей чистую геометрию фасада.

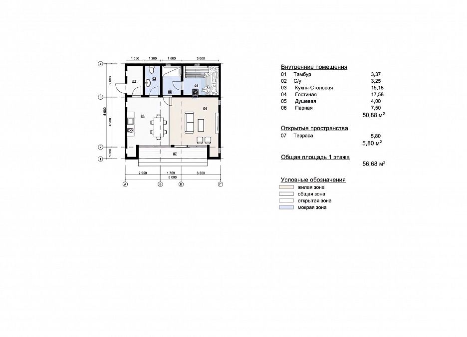
Стены и терраса облицованы деревянной вагонкой, придающей строению тёплый природный облик и органично вписывающей его в лесной или дачный ландшафт. Компактная баня размерами 8×8 м и общей площадью 51 м² подойдёт для семейного отдыха, сдачи в аренду или установки на участке загородного дома. Планировка включает кухню-столовую (15 м²), гостиную (около 17.5 м²), санузел, душевую и парную. Пространство организовано функционально, с акцентом на комфорт: жилая и мокрая зоны чётко разделены, что удобно для эксплуатации и уборки. Терраса площадью почти 6 м² станет уютным местом для отдыха на свежем воздухе. Проект подходит для тех, кто ищет стильную и продуманную баню с возможностью ночевки и полноценного отдыха, но не располагает большим участком. Идеальный вариант для дачи, глэмпинга или турбазы.

Похожие проекты вы найдете в категориях каталога
Оплата Доставка
Описание
1. Фундамент
  • Геодезические исследования (топосъемка) участка
  • Геологические иследования участка
  • Подбор фундамента
  • Проект фундамента
  • Привязка строения на местности
  • Забивные ж/б сваи
  • Монолитный ж/б ростверк
  • Приемка инженером технического надзора
2. Стеновой комплект
  • Рабочий проект КД
  • Подкладочная доска из лиственницы
  • Брус клееный стеновой производства, сечение 175х185(h), немецкий профиль
  • Балки и столбы сухие, клееные, строганные
  • Комплектующие, фурнитура
  • Лестница межэтажная черновая однопролетная
  • Доставка стенового комплекта
  • Сборка стенового комплекта
  • Приемка инженером технического надзора
3. Кровля
  • Рабочий проект КД кровли
  • Покрытие кровли - металлочерепица с полимерным покрытием
  • Стропила сухие
  • Утепление 250 мм
  • Гидро-ветрозащитная мембарана
  • Пароизоляционная пленка
  • Комплектующие, фурнитура
  • Водосточная система
  • Трубчатая система снегозадержания
  • Техническая вентиляция
  • Подшивная доска для свесов кровли
  • Доставка
  • Сборка
  • Приемка инженером технического надзора
4. Окна и двери
  • ПВХ-профиль 70 мм и фурнитура
  • Стеклопакеты энергосберегающие многофункциональные
  • Входная дверь
  • Комплектующие
  • Внешние наличники
  • Монтаж
  • Приемка инженером технического надзора
5. Сопровождение строительства
  • Организация проживания рабочих (бытовка)
  • Подключение бытовки к электричеству
  • Организация биотуалета
  • Вывоз мусора
  • Заказать бесплатные изменения в проекте
    или планировке
    Бесплатные изменения
  • Получить фото и планировку этого проекта в WhatsApp или Telegram Фото и планировки
    Отправим
    в течение
    5 минут
  • Получить расчет
    стоимости
    в 3 вариантах комплектации
    Расчет стоимости

Остались вопросы?

Свяжитесь с нами или оставьте заявку — мы проконсультируем вас по всем вопросам.

Артем Ефремов

Артем Ефремов

Эксперт по строительству

Выберите удобный для вас способ связи:

Похожие проекты

Другие
Смотрите также похожие
  • По стоимости
    Проекты бань до 5 млн. ₽
    Иконка
  • По площади
    Проекты бань до 60 м2
    Иконка
  • По размеру
    Проекты бань 6x6
    Иконка
  • По материалу
    Каркасные бани под ключ
    Иконка
CUBE 4

Просторная баня с эргономичной планировкой
и открытой зоной приема гостей

Стоимость

от 3 168 000 руб.

Размеры

8х8

Площадь помещений

51 м²

Мы используем файлы cookie
для обеспечения наилучшего
взаимодействия с сайтом

наверх