

Сорренто
Баня с большими окнами и гостиной
для комфортного отдыха в гармонии с природой
Размеры
5х9Площадь помещений
24 м²Пятно застройки
47 м²Этажность
1Технология
Проф. брусСтиль
СкандинавскийСтоимость
от 2 977 100 руб.Размеры
5х9Площадь помещений
24 м²Пятно застройки
47 м²Этажность
1Технология
Проф. брусСтиль
СкандинавскийПо вашему запросу мы бесплатно доработаем планировку, чтобы вы получили максимальное удовольствие от загородного отдыха
Предложим планировку, в которой каждый квадратный метр будет использован с максимальной эффективностью
Увеличим или уменьшим площадь здания. Изменим расположение окон и дверей. Добавим санузел, ещё одну спальню для гостей, террасу и так далее
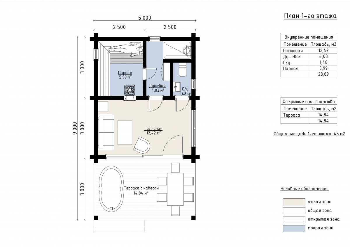
Изменить проектСорренто: Финская баня из бруса – 5х9
Баня «Сорренто» общей площадью 45 м² выполнена из профилированного бруса, что обеспечивает экологичность, долговечность и высокую теплоизоляцию.
Архитектурный стиль — современный минимализм с акцентом на практичность и гармонию с природой. Большие окна позволяют проникать естественному свету, создавая уютную атмосферу внутри.
Функциональная планировка включает просторную гостиную площадью 12 м² — идеальное место для отдыха и общения, парную 6 м², где можно наслаждаться жарким паром, душевую 4 м², компактный санузел 1,5 м², а также большую террасу с навесом площадью 15 м², которая станет зоной для расслабления на свежем воздухе.
Проект «Сорренто» отлично подойдет для небольшой семьи или компании, которые ищут баланс между уютом, функциональностью и эстетикой.
| Описание | |
|---|---|
| 1. Фундамент |
|
| 2. Стеновой комплект |
|
| 3. Кровля |
|
| 4. Окна и двери |
|
| 5. Сопровождение строительства |
|
-
Заказать бесплатные изменения в проекте
или планировке
-
Получить фото и планировку этого проекта в WhatsApp или Telegram
Отправим
в течение
5 минут -
Получить расчет
стоимости в 3 вариантах комплектации
Остались вопросы?
Свяжитесь с нами или оставьте заявку — мы проконсультируем вас по всем вопросам.
Артем Ефремов
Эксперт по строительству
Похожие проекты
Другие- 5х9
- Размеры
- 24 м²
- Площадь помещений
Заполните форму и получите бесплатно: