

Милуоки
Натуральные материалы, традиционный стиль
и удобная планировка для идеального отдыха.
Размеры
5х9Площадь помещений
24 м²Пятно застройки
45 м²Этажность
1Технология
БревноСтиль
традиционный/деревенскийСтоимость
от 1 550 000 руб.Размеры
5х9Площадь помещений
24 м²Пятно застройки
45 м²Этажность
1Технология
БревноСтиль
традиционный/деревенскийПо вашему запросу мы бесплатно доработаем планировку, чтобы вы получили максимальное удовольствие от загородного отдыха
Предложим планировку, в которой каждый квадратный метр будет использован с максимальной эффективностью
Увеличим или уменьшим площадь здания. Изменим расположение окон и дверей. Добавим санузел, ещё одну спальню для гостей, террасу и так далее
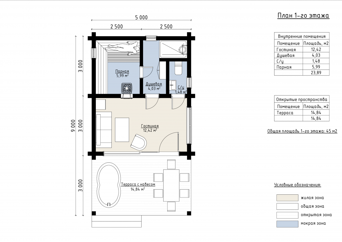
Изменить проектМилуоки: Финская баня из бревна – 5х9
Компактная и уютная баня из бревна «Милуоки» гармонично впишется в любой загородный участок.
Проект сочетает в себе традиционный стиль деревянного строительства с современными решениями для комфортного отдыха. Просторная крытая терраса площадью 15 м² станет отличным местом для отдыха на свежем воздухе и дружеских посиделок. Внутреннее пространство организовано максимально функционально. Гостиная (12 м²) с панорамными окнами наполняет помещение естественным светом и создаёт атмосферу уюта. Парная (6 м²) рассчитана на 3-4 человека и оборудована всем необходимым для комфортного парения. Душевая (4 м²) позволяет охладиться после бани, а компактный санузел (2 м²) делает проект ещё более удобным для эксплуатации. Баня «Милуоки» – это стильное и практичное решение для загородного отдыха, где каждая деталь продумана до мелочей.
| Описание | |
|---|---|
| 1. Фундамент |
|
| 2. Стеновой комплект |
|
| 3. Кровля |
|
| 4. Окна и двери |
|
| 5. Сопровождение строительства |
|
-
Заказать бесплатные изменения в проекте
или планировке
-
Получить фото и планировку этого проекта в WhatsApp или Telegram
Отправим
в течение
5 минут -
Получить расчет
стоимости в 3 вариантах комплектации
Остались вопросы?
Свяжитесь с нами или оставьте заявку — мы проконсультируем вас по всем вопросам.
Артем Ефремов
Эксперт по строительству
Похожие проекты
Другие- 5х9
- Размеры
- 24 м²
- Площадь помещений
Заполните форму и получите бесплатно: