

Милуоки
Баня с акцентом на финские традиции и стиль,
идеальная для отдыха в гармонии с природой.
Размеры
5х9Площадь помещений
24 м²Пятно застройки
45 м²Этажность
1Технология
Клееный брусСтиль
СкандинавияСтоимость
от 3 708 300 руб.Размеры
5х9Площадь помещений
24 м²Пятно застройки
45 м²Этажность
1Технология
Клееный брусСтиль
СкандинавияПо вашему запросу мы бесплатно доработаем планировку, чтобы вы получили максимальное удовольствие от загородного отдыха
Предложим планировку, в которой каждый квадратный метр будет использован с максимальной эффективностью
Увеличим или уменьшим площадь здания. Изменим расположение окон и дверей. Добавим санузел, ещё одну спальню для гостей, террасу и так далее
Изменить проектМилуоки: Финская баня из клееного бруса – 5х9
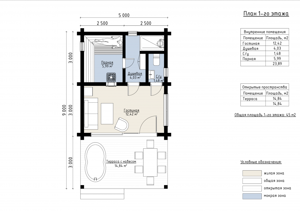
Финская баня из клееного бруса размером 5х9 “Милуоки” представляет собой сочетание функциональности и элегантности.
Общая площадь строения составляет 45 м², включая просторную террасу площадью 15 м². Основное пространство включает гостиную площадью 12 м², где можно комфортно отдохнуть после процедур, душевую на 4 м² и парную в 6 м², идеально подходящую для создания настоящей атмосферы финской бани. Для удобства предусмотрен компактный санузел площадью 2 м². Терраса с навесом станет отличным местом для релаксации на свежем воздухе. Проект “Милуоки” идеально впишется в ландшафтный дизайн, подчеркнув эстетику вашего участка.
| Описание | |
|---|---|
| 1. Фундамент |
|
| 2. Стеновой комплект |
|
| 3. Кровля |
|
| 4. Окна и двери |
|
| 5. Сопровождение строительства |
|
-
Заказать бесплатные изменения в проекте
или планировке
-
Получить фото и планировку этого проекта в WhatsApp или Telegram
Отправим
в течение
5 минут -
Получить расчет
стоимости в 3 вариантах комплектации
Остались вопросы?
Свяжитесь с нами или оставьте заявку — мы проконсультируем вас по всем вопросам.
Артем Ефремов
Эксперт по строительству
Похожие проекты
Другие- 5х9
- Размеры
- 24 м²
- Площадь помещений
Заполните форму и получите бесплатно: