

Милуоки
Функциональная планировка объединяет уют,
практичность и удобство для всей семьи.
Размеры
5х9Площадь помещений
24 м²Пятно застройки
45 м²Этажность
1Технология
Проф. брусСтиль
скандинавияСтоимость
от 1 719 000 руб.Размеры
5х9Площадь помещений
24 м²Пятно застройки
45 м²Этажность
1Технология
Проф. брусСтиль
скандинавияПо вашему запросу мы бесплатно доработаем планировку, чтобы вы получили максимальное удовольствие от загородного отдыха
Предложим планировку, в которой каждый квадратный метр будет использован с максимальной эффективностью
Увеличим или уменьшим площадь здания. Изменим расположение окон и дверей. Добавим санузел, ещё одну спальню для гостей, террасу и так далее
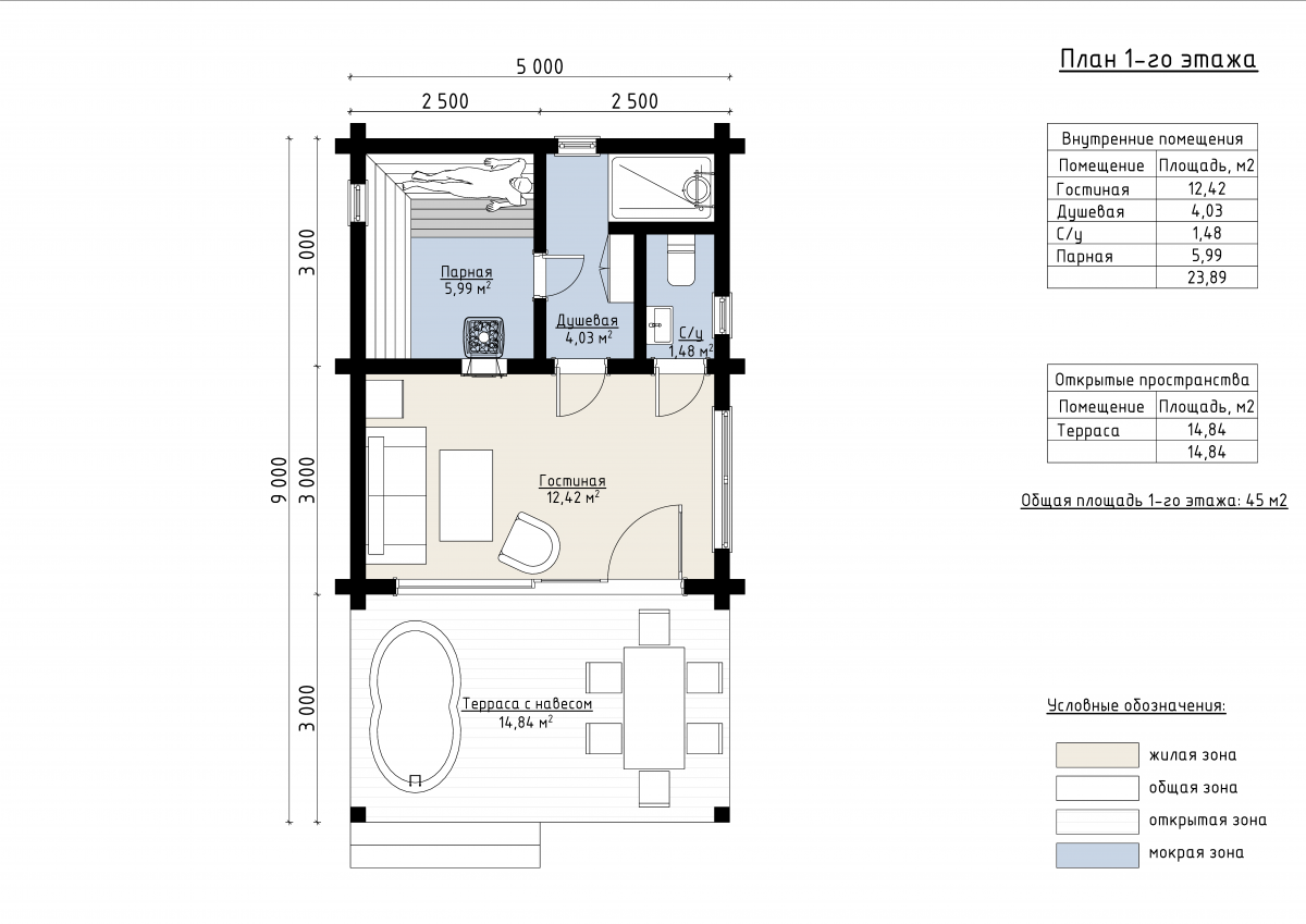
Изменить проектМилуоки: Финская баня из бруса – 5х9
Финская баня из бруса 9x6 "Милуоки" создана для ценителей гармонии и уюта.
Этот компактный проект идеально подходит для небольшого участка и совмещает в себе практичность и стиль. Гостиная площадью 12 м² станет уютным местом для отдыха и общения, а просторная парная (6 м²) порадует любителей настоящей бани. Отдельная душевая (4 м²) и санузел (1 м²) делают проект полностью самодостаточным. Терраса с навесом площадью 15 м² добавляет дополнительное пространство для отдыха на свежем воздухе. Такой проект легко адаптируется под любые пожелания заказчика, будь то зона барбекю, лаунж или открытая столовая. Классический деревянный фасад подчеркивает стиль и элегантность постройки.
| Описание | |
|---|---|
| 1. Фундамент |
|
| 2. Стеновой комплект |
|
| 3. Кровля |
|
| 4. Окна и двери |
|
| 5. Сопровождение строительства |
|
-
Заказать бесплатные изменения в проекте
или планировке
-
Получить фото и планировку этого проекта в WhatsApp или Telegram
Отправим
в течение
5 минут -
Получить расчет
стоимости в 3 вариантах комплектации
Остались вопросы?
Свяжитесь с нами или оставьте заявку — мы проконсультируем вас по всем вопросам.
Артем Ефремов
Эксперт по строительству
Похожие проекты
Другие- 5х9
- Размеры
- 24 м²
- Площадь помещений
Заполните форму и получите бесплатно: