

Сорренто
Элегантная баня с открытой зоной отдыха,
подчёркивающей стиль и функциональность.
Размеры
5х9Площадь помещений
24 м²Пятно застройки
45 м²Этажность
1Технология
Клееный брусСтиль
МинимализмСтоимость
от 3 708 300 руб.Размеры
5х9Площадь помещений
24 м²Пятно застройки
45 м²Этажность
1Технология
Клееный брусСтиль
МинимализмПо вашему запросу мы бесплатно доработаем планировку, чтобы вы получили максимальное удовольствие от загородного отдыха
Предложим планировку, в которой каждый квадратный метр будет использован с максимальной эффективностью
Увеличим или уменьшим площадь здания. Изменим расположение окон и дверей. Добавим санузел, ещё одну спальню для гостей, террасу и так далее
Изменить проектСорренто: Финская баня из клееного бруса – 5х9
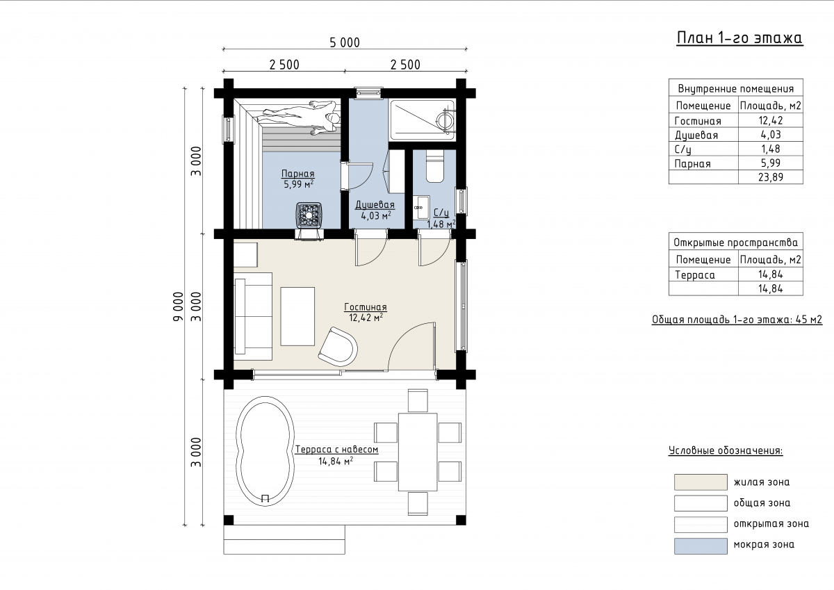
Финская баня из клееного бруса размером 5х9 м «Сорренто» общей площадью 45 м² выполнена в современном элегантном стиле.
Особенностью проекта является просторная терраса с навесом, которая создает уютную зону для отдыха и наслаждения свежим воздухом.
Внутренние помещения занимают 24 м² и включают гостиную площадью 12,42 м², парную 5,99 м², душевую 4,03 м² и санузел 1,48 м². Просторная терраса площадью 14,84 м² идеально подходит для размещения мебели, зоны барбекю или купели.
Проект «Сорренто» станет отличным выбором для ценителей комфортного отдыха в кругу семьи или друзей. Просторная терраса и современный дизайн создают идеальное место для расслабления и наслаждения природой в любое время года.
| Описание | |
|---|---|
| 1. Фундамент |
|
| 2. Стеновой комплект |
|
| 3. Кровля |
|
| 4. Окна и двери |
|
| 5. Сопровождение строительства |
|
-
Заказать бесплатные изменения в проекте
или планировке
-
Получить фото и планировку этого проекта в WhatsApp или Telegram
Отправим
в течение
5 минут -
Получить расчет
стоимости в 3 вариантах комплектации
Остались вопросы?
Свяжитесь с нами или оставьте заявку — мы проконсультируем вас по всем вопросам.
Артем Ефремов
Эксперт по строительству
Похожие проекты
Другие- 5х9
- Размеры
- 24 м²
- Площадь помещений
Заполните форму и получите бесплатно: