

Техас
Просторная финская баня с террасой,
идеальна для отдыха в любое время года.
Размеры
13,5х12Площадь помещений
81 м²Пятно застройки
162 м²Этажность
1Технология
БрусСтиль
шалеСтоимость
от 4 324 000 руб.Размеры
13,5х12Площадь помещений
81 м²Пятно застройки
162 м²Этажность
1Технология
БрусСтиль
шалеПо вашему запросу мы бесплатно доработаем планировку, чтобы вы получили максимальное удовольствие от загородного отдыха
Предложим планировку, в которой каждый квадратный метр будет использован с максимальной эффективностью
Увеличим или уменьшим площадь здания. Изменим расположение окон и дверей. Добавим санузел, ещё одну спальню для гостей, террасу и так далее
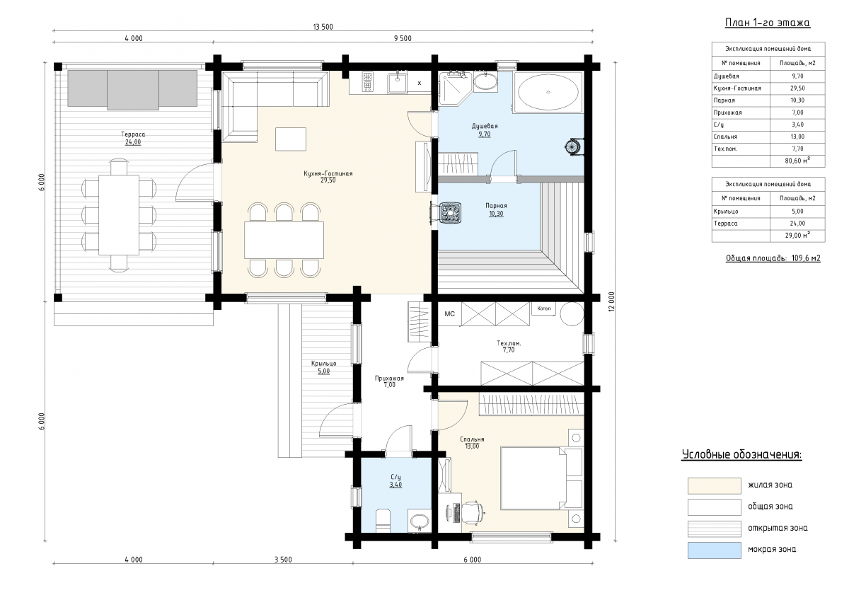
Изменить проектТехас: Финская баня из бруса – 13,5х12
Финская баня из клееного бруса 110 м² "Техас" сочетает в себе стильный дизайн, простор и комфорт.
Темный оттенок древесины подчеркивает благородство конструкции, а массивные балки и крытая терраса придают зданию основательность.
Планировка включает просторную кухню-гостиную (30 м²) с выходом на открытую террасу (24 м²), создавая уютное место для отдыха на свежем воздухе. Отдельная парная (10 м²) и душевая зона (10 м²) обеспечивают комфортные банные процедуры.
В доме предусмотрены спальня (13 м²), санузел (4 м²), прихожая (7 м²), техпомещение (8 м²) и котельная. Функциональная организация пространства делает проект идеальным для круглогодичного отдыха и приема гостей.
| Описание | |
|---|---|
| 1. Фундамент |
|
| 2. Стеновой комплект |
|
| 3. Кровля |
|
| 4. Окна и двери |
|
| 5. Сопровождение строительства |
|
-
Заказать бесплатные изменения в проекте
или планировке
-
Получить фото и планировку этого проекта в WhatsApp или Telegram
Отправим
в течение
5 минут -
Получить расчет
стоимости в 3 вариантах комплектации
Остались вопросы?
Свяжитесь с нами или оставьте заявку — мы проконсультируем вас по всем вопросам.
Артем Ефремов
Эксперт по строительству
Похожие проекты
Другие- 13,5х12
- Размеры
- 81 м²
- Площадь помещений
Заполните форму и получите бесплатно: