


Баня Банбери
Традиционная баня с открытыми пространствами,
созданная для отдыха семьи или компании друзей.
Размеры
13,5х12Площадь помещений
85 м²Пятно застройки
115 м²Этажность
1Технология
Клееный брусСтиль
СкандинавияСтоимость
от 9 212 000 руб.Размеры
13,5х12Площадь помещений
85 м²Пятно застройки
115 м²Этажность
1Технология
Клееный брусСтиль
СкандинавияПо вашему запросу мы бесплатно доработаем планировку, чтобы вы получили максимальное удовольствие от загородного отдыха
Предложим планировку, в которой каждый квадратный метр будет использован с максимальной эффективностью
Увеличим или уменьшим площадь здания. Изменим расположение окон и дверей. Добавим санузел, ещё одну спальню для гостей, террасу и так далее
Изменить проектБанбери: Баня из клееного бруса – 13,5х12
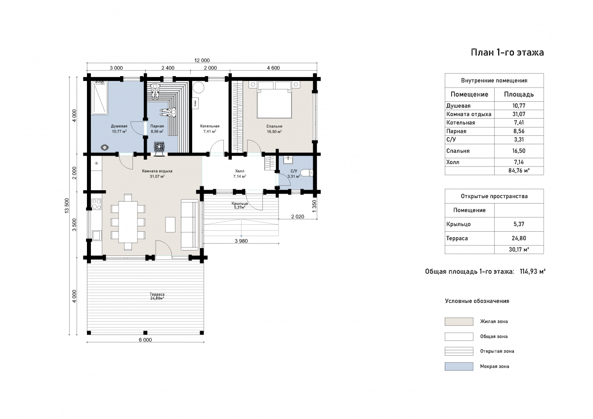
Баня 14x12 м «Банбери» общей площадью 145 м² представляет собой уютный проект в традиционном стиле.
Компактное здание с общей площадью около 115 м² выполнено из высококачественного клееного бруса, что обеспечивает прочность, теплоэффективность и долговечность постройки. Архитектура сочетается с элементами классического загородного стиля, дополненного широкой крытой террасой (25 м²) — идеальным пространством для трапез и общения на свежем воздухе.
Планировка включает в себя просторную комнату отдыха (31 м²), совмещенную с кухонной зоной, где удобно разместить зону для приёма гостей. Также в доме предусмотрены отдельная парная (8,5 м²), душ (10,8 м²), котельная и полноценный санузел. Отдельная спальня площадью 16,5 м² делает баню пригодной не только для кратковременного отдыха, но и для длительного проживания.
Проект «Банбери» подойдёт для тех, кто ценит комфорт, натуральные материалы и функциональность. Он будет идеален как семейная баня с возможностью ночёвки, так и как часть загородной резиденции или базы отдыха.
| Описание | |
|---|---|
| 1. Фундамент |
|
| 2. Стеновой комплект |
|
| 3. Кровля |
|
| 4. Окна и двери |
|
| 5. Сопровождение строительства |
|
-
Заказать бесплатные изменения в проекте
или планировке
-
Получить фото и планировку этого проекта в WhatsApp или Telegram
Отправим
в течение
5 минут -
Получить расчет
стоимости в 3 вариантах комплектации
Остались вопросы?
Свяжитесь с нами или оставьте заявку — мы проконсультируем вас по всем вопросам.
Артем Ефремов
Эксперт по строительству
Похожие проекты
Другие- 13,5х12
- Размеры
- 85 м²
- Площадь помещений
Заполните форму и получите бесплатно: