Бари

Финская баня с просторной террасой
и двумя спальнями для уютного загородного отдыха

Размеры

11х10

Площадь помещений

83 м²

Пятно застройки

110 м²

Этажность

2

Технология

Клееный брус

Стиль

Шале

Стоимость

от 7 852 000 ₽
от 7 852 000 ₽

Размеры

11х10

Площадь помещений

83 м²

Пятно застройки

110 м²

Этажность

2

Технология

Клееный брус

Стиль

Шале
Бесплатно
Бесплатно адаптируем планировку для вас

По вашему запросу мы бесплатно доработаем планировку, чтобы вы получили максимальное удовольствие от загородного отдыха

Предложим планировку, в которой каждый квадратный метр будет использован с максимальной эффективностью

Планировка

Увеличим или уменьшим площадь здания. Изменим расположение окон и дверей. Добавим санузел, ещё одну спальню для гостей, террасу и так далее

Изменить проект

Бари: Баня из клееного бруса – 11х10

Финская баня из клееного бруса размером 11х10 м «Бари» общей площадью 118 м² выполнена в современном архитектурном стиле, сочетающем уют и функциональность.

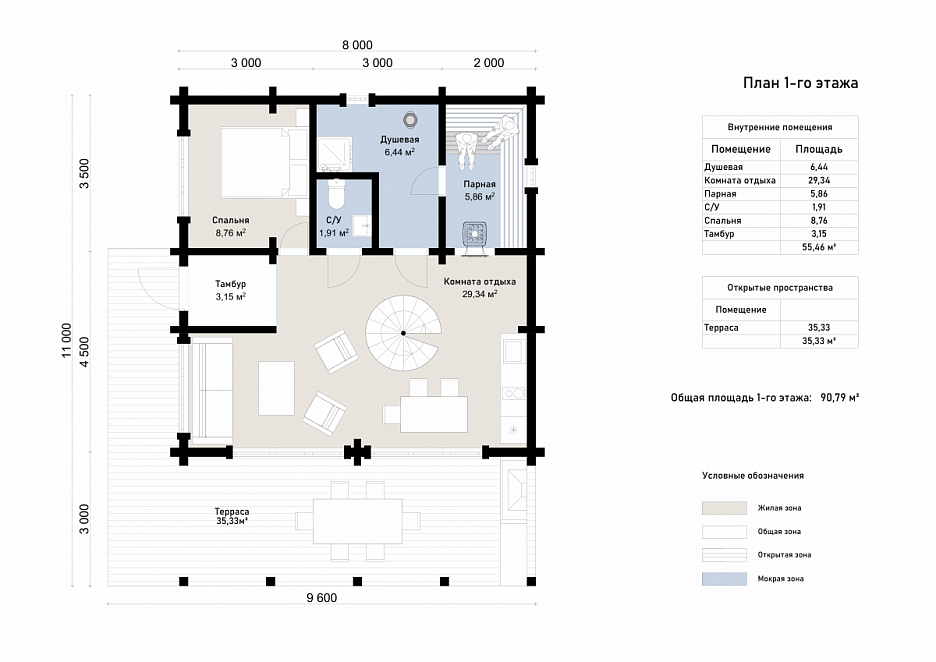
Основной материал — клееный брус, который отличается прочностью, устойчивостью к влаге и эффектным внешним видом. Лаконичная архитектура делает проект “Бари” актуальным как для участков в лесу, так и для современных коттеджных поселков. На первом этаже расположена просторная комната отдыха (29 м²), совмещенная с кухней и обеденной зоной. Также предусмотрены душевая (6,4 м²), санузел и традиционная парная (5,9 м²), отделенная от жилых помещений. Из комнаты отдыха открывается выход на террасу, где удобно разместить обеденную зону или зону барбекю. На втором этаже находится уютная спальня и небольшой холл с зоной отдыха. Проект “Бари” подойдёт тем, кто хочет совместить банный функционал с возможностью комфортного проживания на выходных. Это идеальный выбор для семьи или пары, ценящей приватность и эстетику.
Оплата Доставка
Описание
1. Фундамент
  • Геодезические исследования (топосъемка) участка
  • Геологические иследования участка
  • Подбор фундамента
  • Проект фундамента
  • Привязка строения на местности
  • Забивные ж/б сваи
  • Монолитный ж/б ростверк
  • Приемка инженером технического надзора
2. Стеновой комплект
  • Рабочий проект КД
  • Подкладочная достка из лиственницы
  • Брус клееный стеновой производства, сечение 175х185(h), немецкий профиль
  • Балки и столбы сухие, клееные, строганные
  • Комплектующие, фурнитура
  • Лестница межэтажная черновая однопролетная
  • Доставка стеневого комплекта
  • Сборка стеневого комплекта
  • Приемка инженером технического надзора
3. Кровля
  • Рабочий проект КД кровли
  • Покрытие кровли - металлочерепица с полимерным покрытием
  • Стропила сухие
  • Утепление 250 мм
  • Гидро-ветрозащитная мембарана
  • Пароизоляционная пленка
  • Комплектующие, фурнитура
  • Водосточная система
  • Трубчатая система снегозадержания
  • Техническая вентиляция
  • Подшивная доска для свесов кровли
  • Доставка
  • Сборка
  • Приемка инженером технического надзора
4. Окна и двери
  • ПВХ-профиль Rehau 70мм и фурнитура Siegenia и Roto (Германия)
  • Стеклопакеты энергосберегающие многофункциональные 40 мм
  • Входная металлическая дверь
  • Комплектующие
  • Внешние наличники
  • Монтаж
  • Приемка инженером технического надзора
5. Сопровождение строительства
  • Организация проживания рабочих (бытовка)
  • Подключение бытовки к электричеству
  • Организация биотуалета
  • Вывоз мусора

Остались вопросы?

Свяжитесь с нами или оставьте заявку — мы проконсультируем вас по всем вопросам.

Артем Ефремов

Артем Ефремов

Эксперт по строительству

Выберите удобный для вас способ связи:

Похожие проекты

Другие
Смотрите также похожие
  • По стоимости
    Проекты бань до 5 млн. ₽
    Иконка
  • По площади
    Проекты бань до 60 м2
    Иконка
  • По размеру
    Проекты бань 6x6
    Иконка
  • По материалу
    Каркасные бани под ключ
    Иконка
Бари

Финская баня с просторной террасой
и двумя спальнями для уютного загородного отдыха

Стоимость

от 7 852 000 ₽

Размеры

11х10

Площадь помещений

83 м²

Мы используем файлы cookie
для обеспечения наилучшего
взаимодействия с сайтом

наверх
Акция! До 11 декабря
Получите дизайн-проект бани под ваши размеры бесплатно
Отрисуем планировку бани
Рассчитаем стоимость
Поможем выбрать стиль
Введите телефон, чтобы получить доступ к документу:
Заполните это поле
Получить дизайн-проект
Я согласен с условиями политики конфиденциальности