

Брауншвейг
Функциональный барнхаус с баней —
уют в современном минимализме.
Размеры
6х9Площадь помещений
108 м²Пятно застройки
54 м²Этажность
2Технология
КаркаснаяСтиль
БарнхаусСтоимость
от 5 346 000 руб.Размеры
6х9Площадь помещений
108 м²Пятно застройки
54 м²Этажность
2Технология
КаркаснаяСтиль
БарнхаусПо вашему запросу мы бесплатно доработаем планировку, чтобы вы получили максимальное удовольствие от загородного отдыха
Предложим планировку, в которой каждый квадратный метр будет использован с максимальной эффективностью
Увеличим или уменьшим площадь здания. Изменим расположение окон и дверей. Добавим санузел, ещё одну спальню для гостей, террасу и так далее
Изменить проектБрауншвейг: Баня барнхаус – 6х9
Баня Барнхаус Брауншвейг — современное двухэтажное решение в стиле "barnhouse"
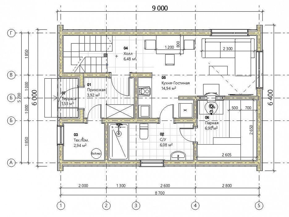
Каркасная баня «Брауншвейг» выполнена в минималистичном скандинавском стиле с кирпичной и фальцевой отделкой фасада. Габариты строения составляют 9 × 6 м, что делает проект компактным, но функциональным. На первом этаже расположены кухня-гостиная (около 15 м²), парная, санузел, техпомещение, прихожая и терраса. Также предусмотрено пространство под лестницу. Второй этаж можно адаптировать под спальни, кабинет или зону отдыха. Проект идеально подойдёт для небольшой семьи или пары, которая ценит эстетику, практичность и хочет совместить функции бани и жилого пространства. Брауншвейг гармонично впишется в участок с современным ландшафтным дизайном и будет уместен как в лесной зоне, так и в дачном посёлке.
- Бани из газобетона
- Бани под ключ
- Бани с бильярдом и бассейном
- Бани с джакузи и бильярдом
- Бани с панорамным остеклением в стиле Фахверк
- Бани с панорамными окнами и мансардой
- Готовые бани с отделкой
- Готовые бани с панорамными окнами
- Готовые финские бани
- Двухэтажные бани в стиле Барнхаус
- Двухэтажные бани в стиле Минимализм
- Двухэтажные бани в стиле Фахверк
- Двухэтажные бани с бильярдом
- Двухэтажные бани с зоной барбекю
- Двухэтажные бани с панорамными окнами
- Двухэтажные дом бани с панорамными окнами
- Деревянные
- Дизайнерские бани с верандой
- Дизайнерские бани с мансардой
- Дизайнерские бани с террасой
- Дизайнерские двухэтажные бани
- Дом бани в стиле Барнхаус
- Дом бани в стиле Фахверк
- Дом баня в финском стиле
- Дом баня для гостей
- Дом с баней для дачи
- Дом с баней и бильярдом
- дом-баня
- Канадские двухэтажные бани
- Кирпичные бани
- Классические двухэтажные бани
- Красивые бани с панорамными окнами
- Недорогие бани с гаражом
- Недорогие бани с душем
- Недорогие бани с печкой
- Недорогие двухэтажные бани
- Оригинальные двухэтажные бани
- Скандинавские бани с комнатой отдыха
- Скандинавские двухэтажные бани
- Скандинавские дом бани
- Современные бани в стиле Минимализм
- Современные бани с панорамными окнами
- Срубы бань
- Типовые проекты бань
- Финские бани на дачу
- Финские бани с панорамными окнами
- Финские бани с печкой
| Описание | |
|---|---|
| 1. Фундамент |
|
| 2. Стеновой комплект |
|
| 3. Кровля |
|
| 4. Окна и двери |
|
| 5. Сопровождение строительства |
|
-
Заказать бесплатные изменения в проекте
или планировке
-
Получить фото и планировку этого проекта в WhatsApp или Telegram
Отправим
в течение
5 минут -
Получить расчет
стоимости в 3 вариантах комплектации
Остались вопросы?
Свяжитесь с нами или оставьте заявку — мы проконсультируем вас по всем вопросам.
Артем Ефремов
Эксперт по строительству
Похожие проекты
Другие- 6х9
- Размеры
- 108 м²
- Площадь помещений
Заполните форму и получите бесплатно: