

Дублин
Барнхаус с элегантным дизайном и зонами для отдыха,
созданный для уюта и практичности в любое время года.
Размеры
8х13Площадь помещений
99 м²Пятно застройки
104 м²Этажность
2Технология
КаркаснаяСтиль
барнхаусСтоимость
от 5 746 000 руб.Размеры
8х13Площадь помещений
99 м²Пятно застройки
104 м²Этажность
2Технология
КаркаснаяСтиль
барнхаусПо вашему запросу мы бесплатно доработаем планировку, чтобы вы получили максимальное удовольствие от загородного отдыха
Предложим планировку, в которой каждый квадратный метр будет использован с максимальной эффективностью
Увеличим или уменьшим площадь здания. Изменим расположение окон и дверей. Добавим санузел, ещё одну спальню для гостей, террасу и так далее
Изменить проектДублин: Баня барнхаус – 8х13
Баня 13×8 м «Дублин» общей площадью 125 м² в стиле Барнхаус выполнена по каркасной технологии, что обеспечивает энергоэффективность и легкость конструкции.
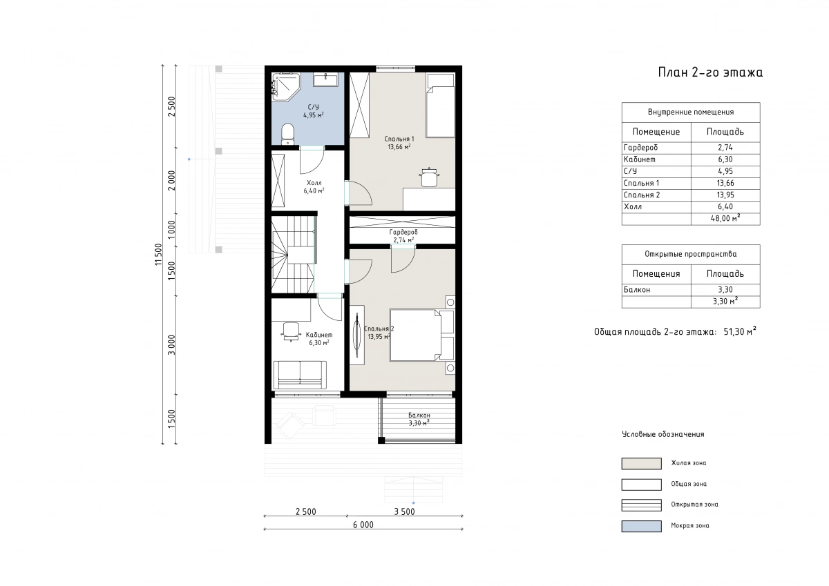
Просторная кухня-гостиная и зоны отдыха создают комфортное пространство, а панорамные окна наполняют дом светом и усиливают связь с природой. Внутренние помещения 101 м²: кухня-гостиная 29 м², парная 5 м², душевая 7 м², два санузла 8 м², спальни по 14 м², кабинет 6 м², холл и гардероб. Открытые пространства включают террасу 22 м², крыльцо 9 м², балкон 3 м². «Дублин» идеально подходит для семейного отдыха или проживания, сочетая уют, стиль и функциональность.
| Описание | |
|---|---|
| 1. Фундамент |
|
| 2. Стеновой комплект |
|
| 3. Кровля |
|
| 4. Окна и двери |
|
| 5. Сопровождение строительства |
|
-
Заказать бесплатные изменения в проекте
или планировке
-
Получить фото и планировку этого проекта в WhatsApp или Telegram
Отправим
в течение
5 минут -
Получить расчет
стоимости в 3 вариантах комплектации
Остались вопросы?
Свяжитесь с нами или оставьте заявку — мы проконсультируем вас по всем вопросам.
Артем Ефремов
Эксперт по строительству
Похожие проекты
Другие- 8х13
- Размеры
- 99 м²
- Площадь помещений
Заполните форму и получите бесплатно: