

Тревизо
Фахверковая баня с панорамными окнами,
создающая уют и единение с природой.
Размеры
10х6Площадь помещений
69 м²Пятно застройки
60 м²Этажность
2Технология
КаркаснаяСтиль
ФахверкСтоимость
от 4 522 000 руб.Размеры
10х6Площадь помещений
69 м²Пятно застройки
60 м²Этажность
2Технология
КаркаснаяСтиль
ФахверкПо вашему запросу мы бесплатно доработаем планировку, чтобы вы получили максимальное удовольствие от загородного отдыха
Предложим планировку, в которой каждый квадратный метр будет использован с максимальной эффективностью
Увеличим или уменьшим площадь здания. Изменим расположение окон и дверей. Добавим санузел, ещё одну спальню для гостей, террасу и так далее
Изменить проектТревизо: Фахверковая баня – 10х6
Элегантная каркасная баня в стиле фахверк с панорамными окнами и высоким фронтоном создаёт ощущение лёгкости и простора.
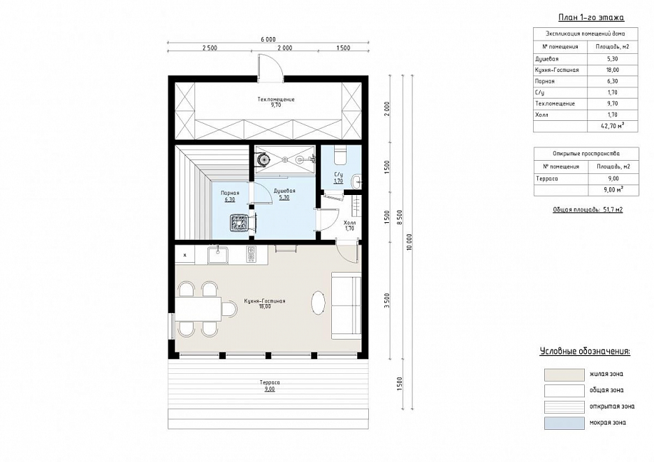
Первый этаж включает кухню-гостиную площадью 18 м², просторную парную 6,3 м², душевую 5,3 м² и санузел 1,7 м². Также предусмотрено техническое помещение 9,7 м². Терраса 9 м² делает отдых ещё комфортнее.
На втором этаже располагается комната отдыха 13,3 м² и спальня 12,9 м².
Архитектурный стиль подчёркивает сочетание натуральных материалов, панорамного остекления и традиционных фахверковых элементов.
| Описание | |
|---|---|
| 1. Фундамент |
|
| 2. Стеновой комплект |
|
| 3. Кровля |
|
| 4. Окна и двери |
|
| 5. Сопровождение строительства |
|
-
Заказать бесплатные изменения в проекте
или планировке
-
Получить фото и планировку этого проекта в WhatsApp или Telegram
Отправим
в течение
5 минут -
Получить расчет
стоимости в 3 вариантах комплектации
Остались вопросы?
Свяжитесь с нами или оставьте заявку — мы проконсультируем вас по всем вопросам.
Артем Ефремов
Эксперт по строительству
Похожие проекты
Другие- 10х6
- Размеры
- 69 м²
- Площадь помещений
Заполните форму и получите бесплатно: