




Баня в стиле A-frame Монта
Эстетика треугольной формы —
баня с бассейном и видом на природу.
Размеры
19х18,4Площадь помещений
229 м²Пятно застройки
350 м²Этажность
2Технология
КаркаснаяСтиль
A-frameСтоимость
от 19 750 000 руб.Размеры
19х18,4Площадь помещений
229 м²Пятно застройки
350 м²Этажность
2Технология
КаркаснаяСтиль
A-frameПо вашему запросу мы бесплатно доработаем планировку, чтобы вы получили максимальное удовольствие от загородного отдыха
Предложим планировку, в которой каждый квадратный метр будет использован с максимальной эффективностью
Увеличим или уменьшим площадь здания. Изменим расположение окон и дверей. Добавим санузел, ещё одну спальню для гостей, террасу и так далее
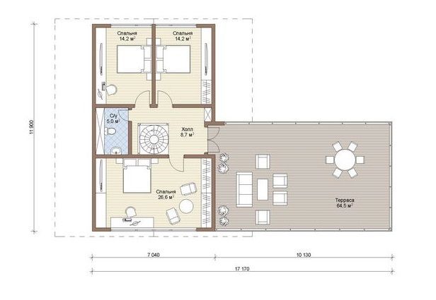
Изменить проектБаня в стиле A-frame Монта: Баня в стиле A-frame – 19х18,4
Современная баня в стиле A-frame «Монта» — это уникальное решение с выразительной архитектурой и максимальным комфортом.
Выполнена из натурального дерева в современном стиле, с вертикальной обшивкой, панорамным остеклением и черной кровлей. Размеры строения — 11×15 м, общая площадь более 170 м². Проект включает две большие террасы (26 и 76 м²), зону SPA с сауной, душевой и бассейном 49 м², кухню, просторную гостиную-столовую (42 м²), гардероб, кладовую и санузел.
«Монта» создана для комфортного отдыха большой семьи или компании. Идеально подходит для частных резиденций, гостиничных комплексов или коммерческих банных проектов. A-frame форма и широкая панорама подчеркивают близость к природе, а большая площадь и комплектация создают ощущение загородного курорта.
| Описание | |
|---|---|
| 1. Фундамент |
|
| 2. Стеновой комплект |
|
| 3. Кровля |
|
| 4. Окна и двери |
|
| 5. Сопровождение строительства |
|
-
Заказать бесплатные изменения в проекте
или планировке
-
Получить фото и планировку этого проекта в WhatsApp или Telegram
Отправим
в течение
5 минут -
Получить расчет
стоимости в 3 вариантах комплектации
Остались вопросы?
Свяжитесь с нами или оставьте заявку — мы проконсультируем вас по всем вопросам.
Артем Ефремов
Эксперт по строительству
Похожие проекты
Другие- 19х18,4
- Размеры
- 229 м²
- Площадь помещений
Заполните форму и получите бесплатно: