

Тулуза
Фахверковая баня с панорамными окнами,
создающая уют и единение с природой.
Размеры
6х10Площадь помещений
35 м²Пятно застройки
60 м²Этажность
1Технология
КаркаснаяСтиль
ФахферкСтоимость
от 2 837 000 руб.Размеры
6х10Площадь помещений
35 м²Пятно застройки
60 м²Этажность
1Технология
КаркаснаяСтиль
ФахферкПо вашему запросу мы бесплатно доработаем планировку, чтобы вы получили максимальное удовольствие от загородного отдыха
Предложим планировку, в которой каждый квадратный метр будет использован с максимальной эффективностью
Увеличим или уменьшим площадь здания. Изменим расположение окон и дверей. Добавим санузел, ещё одну спальню для гостей, террасу и так далее
Изменить проектТулуза: Фахверковая баня – 6х10
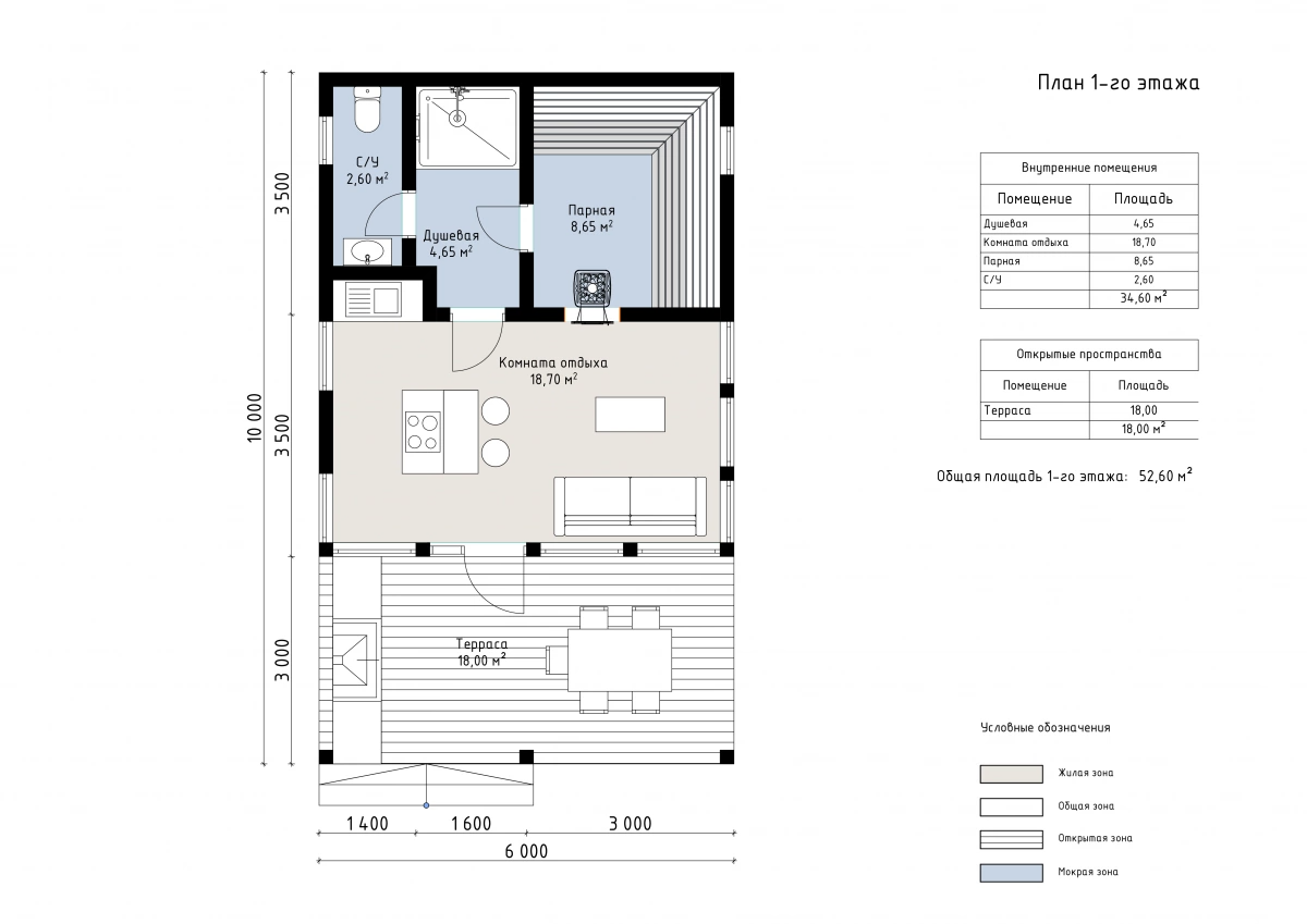
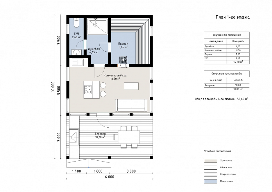
Фахверковая баня 10×6 м «Тулуза» площадью 53 м² выполнена в стиле фахверк с панорамным остеклением, создающим ощущение простора и близости к природе.
Просторная терраса 18 м² и кухня-гостиная 19 м² идеально подходят для отдыха и общения. Каркасная технология обеспечивает прочность, теплоизоляцию и энергоэффективность.
Внутренние помещения занимают 35 м²: парная 9 м², душевая, санузел и уютная зона отдыха. Терраса дополняет баню, позволяя наслаждаться природными пейзажами в любое время года.
Проект «Тулуза» сочетает эстетику фахверка, комфорт и практичность, идеально подходя для загородного отдыха.
| Описание | |
|---|---|
| 1. Фундамент |
|
| 2. Стеновой комплект |
|
| 3. Кровля |
|
| 4. Окна и двери |
|
| 5. Сопровождение строительства |
|
-
Заказать бесплатные изменения в проекте
или планировке
-
Получить фото и планировку этого проекта в WhatsApp или Telegram
Отправим
в течение
5 минут -
Получить расчет
стоимости в 3 вариантах комплектации
Остались вопросы?
Свяжитесь с нами или оставьте заявку — мы проконсультируем вас по всем вопросам.
Артем Ефремов
Эксперт по строительству
Похожие проекты
Другие- 6х10
- Размеры
- 35 м²
- Площадь помещений
Заполните форму и получите бесплатно: