

Штутгарт
Каркасная технология,
гарантирует надежность, теплоизоляцию и долговечность.
Размеры
6х8Площадь помещений
35 м²Пятно застройки
48 м²Этажность
1Технология
КаркаснаяСтиль
ФахверкСтоимость
от 2 446 000 руб.Размеры
6х8Площадь помещений
35 м²Пятно застройки
48 м²Этажность
1Технология
КаркаснаяСтиль
ФахверкПо вашему запросу мы бесплатно доработаем планировку, чтобы вы получили максимальное удовольствие от загородного отдыха
Предложим планировку, в которой каждый квадратный метр будет использован с максимальной эффективностью
Увеличим или уменьшим площадь здания. Изменим расположение окон и дверей. Добавим санузел, ещё одну спальню для гостей, террасу и так далее
Изменить проектШтутгарт: Фахверковая баня – 6х8
Фахверковая баня «Штудгарт» — это сочетание уюта и современного стиля в компактном формате.
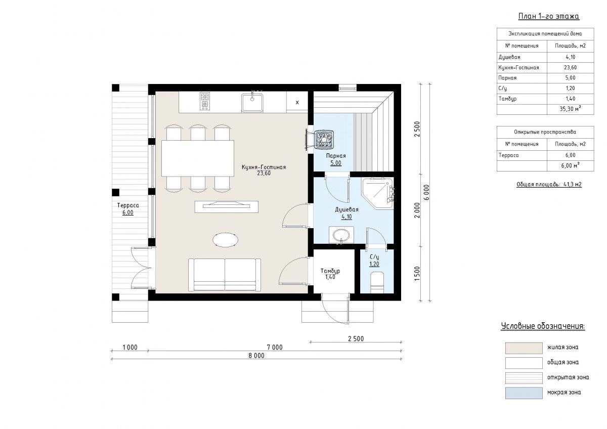
Панорамное остекление подчеркивает легкость конструкции и позволяет наслаждаться природой. Просторная кухня-гостиная площадью 23,6 м² обеспечивает комфортное пространство для отдыха, а примыкающая к ней терраса в 6 м² — отличное место для вечерних посиделок. Парная 5 м² выполнена в традиционном стиле, а душевая 4,1 м² дополняет зону комфорта. Грамотная планировка включает тамбур 1,4 м² и санузел 1,2 м². Общая площадь строения — 41,3 м², что делает его идеальным вариантом для загородного отдыха.
- Бани под ключ
- Бани с барбекю и мангалом
- Бани с беседкой и бассейном
- Бани с бильярдом и бассейном
- Бани с джакузи и бильярдом
- Бани с мангалом и барбекю
- Бани с мини-бассейном
- Бани с панорамным остеклением в стиле Фахверк
- Бани с теплым бассейном
- Бани хай тек с панорамными окнами
- Готовые бани с отделкой
- Готовые бани с панорамными окнами
- Готовые финские бани
- Дачные
- Деревянные
- Дизайнерские бани с верандой
- Дизайнерские бани с террасой
- Дизайнерские одноэтажные бани
- Дом бани в стиле Фахверк
- Дом баня в финском стиле
- Дом баня для гостей
- Дом с баней для дачи
- Дом с баней и бильярдом
- дом-баня
- Каркасные бани
- Красивые бани с панорамными окнами
- Недорогие бани с барбекю
- Недорогие бани с душем
- Недорогие бани с мангалом
- Недорогие бани с печкой
- Одноэтажные бани в стиле Минимализм
- Одноэтажные бани в стиле Фахверк
- Одноэтажные бани с бильярдом
- Одноэтажные бани с зоной для мангала
- Оригинальные одноэтажные бани
- Скандинавские бани с комнатой отдыха
- Скандинавские дом бани
- Скандинавские одноэтажные бани
- Современные бани в стиле Минимализм
- Современные бани с панорамными окнами
- Типовые проекты бань
- Финские бани на дачу
- Финские бани с панорамными окнами
- Финские бани с печкой
| Описание | |
|---|---|
| 1. Фундамент |
|
| 2. Стеновой комплект |
|
| 3. Кровля |
|
| 4. Окна и двери |
|
| 5. Сопровождение строительства |
|
-
Заказать бесплатные изменения в проекте
или планировке
-
Получить фото и планировку этого проекта в WhatsApp или Telegram
Отправим
в течение
5 минут -
Получить расчет
стоимости в 3 вариантах комплектации
Остались вопросы?
Свяжитесь с нами или оставьте заявку — мы проконсультируем вас по всем вопросам.
Артем Ефремов
Эксперт по строительству
Похожие проекты
Другие- 6х8
- Размеры
- 35 м²
- Площадь помещений
Заполните форму и получите бесплатно: