

Баня Тренто №2
Современная баня с панорамными окнами
и стильным дизайном
Размеры
6х8Площадь помещений
35 м²Пятно застройки
48 м²Этажность
1Технология
КаменьСтиль
ФахверкСтоимость
от 3 840 000 руб.Размеры
6х8Площадь помещений
35 м²Пятно застройки
48 м²Этажность
1Технология
КаменьСтиль
ФахверкПо вашему запросу мы бесплатно доработаем планировку, чтобы вы получили максимальное удовольствие от загородного отдыха
Предложим планировку, в которой каждый квадратный метр будет использован с максимальной эффективностью
Увеличим или уменьшим площадь здания. Изменим расположение окон и дверей. Добавим санузел, ещё одну спальню для гостей, террасу и так далее
Изменить проектТренто №2: Баня из бруса – 6х8
Баня 6х8 м общей площадью 35 м² «Тренто №2» выполнена в современном стиле с использованием кирпича, что обеспечивает прочность, надежность и привлекательный внешний вид.
Просторные панорамные окна подчеркивают минимализм архитектуры, позволяя наполнить помещение естественным светом и визуально расширяя внутреннее пространство. Стильный двускатный кровельный дизайн гармонично вписывается в загородный ландшафт.
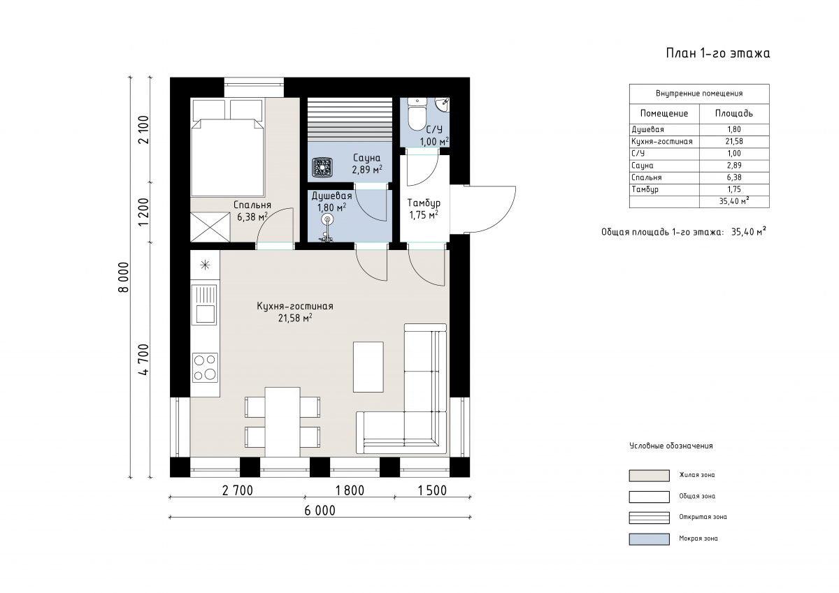
Внутренние помещения бани занимают 35 м² и включают уютную кухню-гостиную площадью 21 м², спальню 6 м², сауну 3 м², душевую и санузел. Планировка выполнена таким образом, чтобы обеспечить комфортное размещение всех зон, идеально подходящих для отдыха и восстановления.
Проект «Тренто №2» предназначен для тех, кто ценит функциональность и эстетичность. Баня гармонично сочетает современные строительные технологии с традиционными решениями, создавая уникальное пространство для отдыха на природе.
| Описание | |
|---|---|
| 1. Фундамент |
|
| 2. Стеновой комплект |
|
| 3. Кровля |
|
| 4. Окна и двери |
|
| 5. Сопровождение строительства |
|
-
Заказать бесплатные изменения в проекте
или планировке
-
Получить фото и планировку этого проекта в WhatsApp или Telegram
Отправим
в течение
5 минут -
Получить расчет
стоимости в 3 вариантах комплектации
Остались вопросы?
Свяжитесь с нами или оставьте заявку — мы проконсультируем вас по всем вопросам.
Артем Ефремов
Эксперт по строительству
Похожие проекты
Другие- 6х8
- Размеры
- 35 м²
- Площадь помещений
Заполните форму и получите бесплатно: