

Штутгарт
Лёгкая и стильная каркасная баня,
совмещающая современный дизайн и удобство.
Размеры
6х8Площадь помещений
35 м²Пятно застройки
48 м²Этажность
1Технология
КаркаснаяСтиль
ФахверкСтоимость
от 2 446 000 руб.Размеры
6х8Площадь помещений
35 м²Пятно застройки
48 м²Этажность
1Технология
КаркаснаяСтиль
ФахверкПо вашему запросу мы бесплатно доработаем планировку, чтобы вы получили максимальное удовольствие от загородного отдыха
Предложим планировку, в которой каждый квадратный метр будет использован с максимальной эффективностью
Увеличим или уменьшим площадь здания. Изменим расположение окон и дверей. Добавим санузел, ещё одну спальню для гостей, террасу и так далее
Изменить проектШтутгарт: Каркасная баня – 6х8
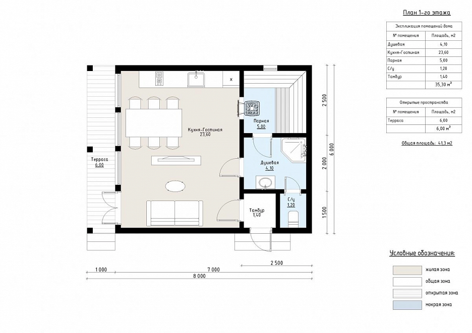
Фахверковая баня 8×6 м «Штутгарт» общей площадью 41 м² выполнена по каркасной технологии, что обеспечивает быструю возводимость, легкость перепланировки.
Архитектура в стиле фахверк с панорамным остеклением наполняет помещения светом, создавая уют и простор. Просторная кухня-гостиная идеально подходит для отдыха и общения. Общая площадь внутренних помещений составляет 35 м²: кухня-гостиная 24 м², парная 5 м², душевая 4 м², санузел и тамбур. Терраса 6 м² станет отличным местом для отдыха на свежем воздухе. «Штутгарт» — стильный, функциональный проект для загородного участка.
| Описание | |
|---|---|
| 1. Фундамент |
|
| 2. Стеновой комплект |
|
| 3. Кровля |
|
| 4. Окна и двери |
|
| 5. Сопровождение строительства |
|
-
Заказать бесплатные изменения в проекте
или планировке
-
Получить фото и планировку этого проекта в WhatsApp или Telegram
Отправим
в течение
5 минут -
Получить расчет
стоимости в 3 вариантах комплектации
Остались вопросы?
Свяжитесь с нами или оставьте заявку — мы проконсультируем вас по всем вопросам.
Артем Ефремов
Эксперт по строительству
Похожие проекты
Другие- 6х8
- Размеры
- 35 м²
- Площадь помещений
Заполните форму и получите бесплатно: