

Тренто 1
Баня в стиле фахверк с акцентом на уют
и функциональную планировку для загородного отдыха.
Размеры
6х8Площадь помещений
40 м²Пятно застройки
48 м²Этажность
1Технология
КаркаснаяСтиль
ФахверкСтоимость
от 2 672 000 руб.Размеры
6х8Площадь помещений
40 м²Пятно застройки
48 м²Этажность
1Технология
КаркаснаяСтиль
ФахверкПо вашему запросу мы бесплатно доработаем планировку, чтобы вы получили максимальное удовольствие от загородного отдыха
Предложим планировку, в которой каждый квадратный метр будет использован с максимальной эффективностью
Увеличим или уменьшим площадь здания. Изменим расположение окон и дверей. Добавим санузел, ещё одну спальню для гостей, террасу и так далее
Изменить проектТренто 1: Баня под ключ – 6х8
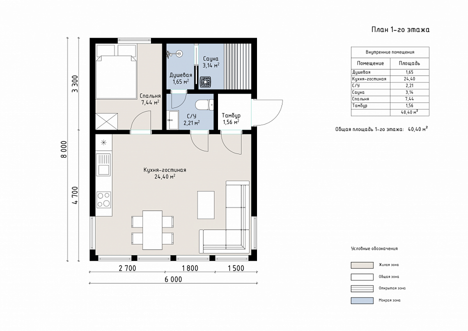
Баня 6х8 м общей площадью 40 м² «Тренто №1» выполнена в современном стиле по каркасной технологии.
Большие панорамные окна на фасаде наполняют помещения естественным светом, создавая атмосферу уюта и гармонии с окружающей природой.
Внутренние помещения занимают 40 м² и включают просторную кухню-гостиную площадью 24 м², спальню 7 м², парную 3 м², душевую 1,5 м², санузел 2 м² и тамбур. Функциональная планировка идеально сочетает комфорт и рациональное использование пространства, подходящее как для семейного отдыха, так и для встреч с друзьями.
«Тренто №1» станет отличным выбором для ценителей современного дизайна, надежности и практичности. Проект подойдет для загородного отдыха и создания уютного пространства, обеспечивающего полный релакс и наслаждение природой.
| Описание | |
|---|---|
| 1. Фундамент |
|
| 2. Стеновой комплект |
|
| 3. Кровля |
|
| 4. Окна и двери |
|
| 5. Сопровождение строительства |
|
-
Заказать бесплатные изменения в проекте
или планировке
-
Получить фото и планировку этого проекта в WhatsApp или Telegram
Отправим
в течение
5 минут -
Получить расчет
стоимости в 3 вариантах комплектации
Остались вопросы?
Свяжитесь с нами или оставьте заявку — мы проконсультируем вас по всем вопросам.
Артем Ефремов
Эксперт по строительству
Похожие проекты
Другие- 6х8
- Размеры
- 40 м²
- Площадь помещений
Заполните форму и получите бесплатно: