
Баня Магдебург 7
Лаконичный дизайн и натуральные материалы,
подчеркивают современный стиль проекта.
Размеры
6х8Площадь помещений
40 м²Пятно застройки
48 м²Этажность
1Технология
Клееный брусСтиль
ФахверкСтоимость
от 4 624 000 руб.Размеры
6х8Площадь помещений
40 м²Пятно застройки
48 м²Этажность
1Технология
Клееный брусСтиль
ФахверкПо вашему запросу мы бесплатно доработаем планировку, чтобы вы получили максимальное удовольствие от загородного отдыха
Предложим планировку, в которой каждый квадратный метр будет использован с максимальной эффективностью
Увеличим или уменьшим площадь здания. Изменим расположение окон и дверей. Добавим санузел, ещё одну спальню для гостей, террасу и так далее
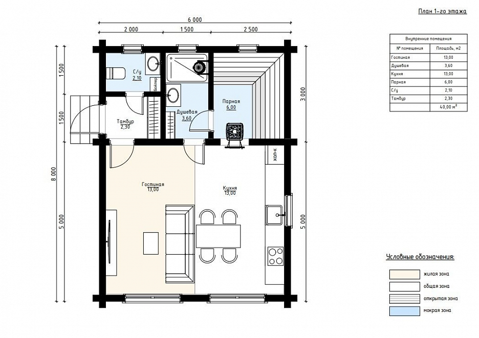
Изменить проектМагдебург 7: Баня из клееного бруса – 6х8
Баня 6х8 м «Магдебург 7» общей площадью 48 м² выполнена в современном стиле с акцентом на уют и функциональность.
Благодаря строгим формам, панорамному остеклению и аккуратной геометрии фасада, здание органично вписывается как в лесной участок, так и в современную загородную застройку.
Размеры строения — 6 на 8 метров. Общая площадь первого этажа составляет 40 м². Пространство внутри поделено на функциональные зоны: просторная гостиная и кухня по 13 м² каждая, парная (6 м²) и душевая (3,6 м²) образуют полноценный спа-блок. Также предусмотрены тамбур и санузел.
В качестве основного материала используется прочный клееный брус, обеспечивающий надежность, теплоизоляцию и устойчивость к влаге и перепадам температур. Это делает баню пригодной для круглогодичного использования.
Проект отлично подойдёт тем, кто ценит комфортную зону отдыха в собственном загородном доме, предпочитает экологичные материалы и готов рассматривать баню как место для общения с семьей и друзьями. Идеально впишется в участок рядом с домом или у воды.
| Описание | |
|---|---|
| 1. Фундамент |
|
| 2. Стеновой комплект |
|
| 3. Кровля |
|
| 4. Окна и двери |
|
| 5. Сопровождение строительства |
|
-
Заказать бесплатные изменения в проекте
или планировке
-
Получить фото и планировку этого проекта в WhatsApp или Telegram
Отправим
в течение
5 минут -
Получить расчет
стоимости в 3 вариантах комплектации
Остались вопросы?
Свяжитесь с нами или оставьте заявку — мы проконсультируем вас по всем вопросам.
Артем Ефремов
Эксперт по строительству
Похожие проекты
Другие- 6х8
- Размеры
- 40 м²
- Площадь помещений
Заполните форму и получите бесплатно: