
Магдебург
Лаконичный скандинавский стиль,
подчеркивающий эстетику и уют.
Размеры
6х8Площадь помещений
40 м²Пятно застройки
48 м²Этажность
1Технология
БрусСтиль
ФахверкСтоимость
от 2 148 000 руб.Размеры
6х8Площадь помещений
40 м²Пятно застройки
48 м²Этажность
1Технология
БрусСтиль
ФахверкПо вашему запросу мы бесплатно доработаем планировку, чтобы вы получили максимальное удовольствие от загородного отдыха
Предложим планировку, в которой каждый квадратный метр будет использован с максимальной эффективностью
Увеличим или уменьшим площадь здания. Изменим расположение окон и дверей. Добавим санузел, ещё одну спальню для гостей, террасу и так далее
Изменить проектМагдебург: Баня из бруса – 6х8
Элегантная каркасная баня "Магдебург" 6×8 м идеально впишется в природное окружение, предлагая комфортный отдых в любое время года.
Проект выполнен в минималистичном стиле с лаконичными архитектурными решениями, и отлично впишется как в природное окружение, так и в участок рядом с жилым домом.
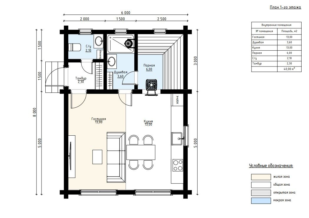
Общая площадь составляет 40 м², здание размером 6×8 метров включает гостиную (13 м²), кухню (13 м²), душевую (3,6 м²), парную (6 м²), санузел и тамбур. Жилая зона объединяет кухню и гостиную, создавая просторное помещение для отдыха и встреч. Мокрая зона представлена полноценным банным блоком. Фасад украшен крытой террасой, создающей уютное пространство для уединения или приёма гостей.
Проект подойдёт для семьи или небольшой компании, ценящих функциональность, тепло натурального дерева и атмосферу современного отдыха. Идеален как сезонный домик, гостевой блок на участке или как баня с возможностью ночёвки.
| Описание | |
|---|---|
| 1. Фундамент |
|
| 2. Стеновой комплект |
|
| 3. Кровля |
|
| 4. Окна и двери |
|
| 5. Сопровождение строительства |
|
-
Заказать бесплатные изменения в проекте
или планировке
-
Получить фото и планировку этого проекта в WhatsApp или Telegram
Отправим
в течение
5 минут -
Получить расчет
стоимости в 3 вариантах комплектации
Остались вопросы?
Свяжитесь с нами или оставьте заявку — мы проконсультируем вас по всем вопросам.
Артем Ефремов
Эксперт по строительству
Похожие проекты
Другие- 6х8
- Размеры
- 40 м²
- Площадь помещений
Заполните форму и получите бесплатно: