

Баня Тренто №3
Компактная баня с панорамными окнами
и уютными спальнями
Размеры
6х8Площадь помещений
36 м²Пятно застройки
48 м²Этажность
1Технология
КаменьСтиль
ФахверкСтоимость
от 3 840 000 руб.Размеры
6х8Площадь помещений
36 м²Пятно застройки
48 м²Этажность
1Технология
КаменьСтиль
ФахверкПо вашему запросу мы бесплатно доработаем планировку, чтобы вы получили максимальное удовольствие от загородного отдыха
Предложим планировку, в которой каждый квадратный метр будет использован с максимальной эффективностью
Увеличим или уменьшим площадь здания. Изменим расположение окон и дверей. Добавим санузел, ещё одну спальню для гостей, террасу и так далее
Изменить проектТренто №3: Баня из газоблока – 6х8
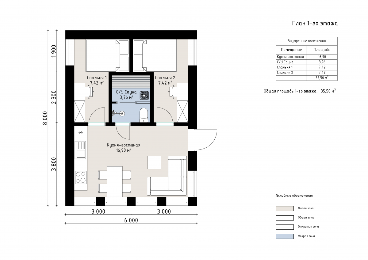
Баня 6х8 м общей площадью 36 м² «Тренто №3» выполнена в современном архитектурном стиле.
Особенностью проекта являются панорамные окна, которые подчеркивают минималистичный дизайн и обеспечивают естественное освещение внутри помещений.
Внутренние помещения занимают 36 м² и включают просторную кухню-гостиную площадью 17 м², две уютные спальни по 7 м² каждая и функциональную сауну с санузлом площадью 4 м². Эти зоны спроектированы с учетом максимального комфорта и эргономики, создавая уютное пространство для отдыха.
Проект «Тренто №3» станет отличным выбором для тех, кто ценит стильный дизайн, функциональность и уют. Баня идеально подходит как для семейного отдыха, так и для дружеских встреч или уединенных вечеров. Просторные внутренние помещения и гармоничное сочетание материалов обеспечивают комфорт в любое время года. Благодаря современному дизайну и панорамным окнам, баня «Тренто №2» органично впишется в природное окружение, создавая атмосферу расслабления и гармонии.
| Описание | |
|---|---|
| 1. Фундамент |
|
| 2. Стеновой комплект |
|
| 3. Кровля |
|
| 4. Окна и двери |
|
| 5. Сопровождение строительства |
|
-
Заказать бесплатные изменения в проекте
или планировке
-
Получить фото и планировку этого проекта в WhatsApp или Telegram
Отправим
в течение
5 минут -
Получить расчет
стоимости в 3 вариантах комплектации
Остались вопросы?
Свяжитесь с нами или оставьте заявку — мы проконсультируем вас по всем вопросам.
Артем Ефремов
Эксперт по строительству
Похожие проекты
Другие- 6х8
- Размеры
- 36 м²
- Площадь помещений
Заполните форму и получите бесплатно: